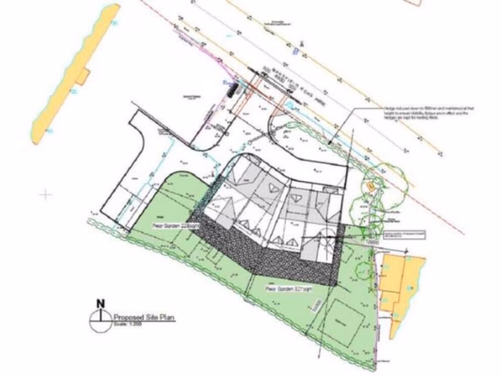
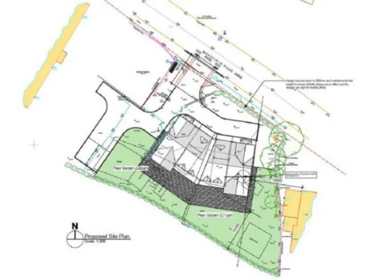
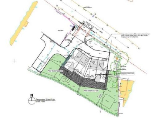
Large plot with outline planning and far-reaching rural views.
Extended three-bedroom cottage with two bathrooms
A rare period home with modernised interiors and wide countryside views. This three-bedroom extended cottage dates from the 1800s and sits well back from Mansfield Road behind gated access. The current owners have updated many rooms — including a farmhouse-style kitchen and double glazing installed after 2002 — while retaining character features such as exposed beams and a multi-fuel burner.
The plot is a standout asset: very large gardens, driveway parking and two garages, plus outline planning permission for two detached houses on the adjacent building plot. That approval creates development or investment potential while also leaving scope for the new owner to retain the land for private use, gardens or equestrian purposes.
Practical details to note: the property is solid-brick as built and is assumed to have no wall insulation, which may affect running costs and future upgrade work. The house is freehold, mains gas‑fired boiler and radiators provide heating, and there is no flood risk recorded. The location offers low local crime, good broadband speeds and easy access to nearby schools and the M1.
This cottage will suit buyers seeking a character home with a significant garden and development upside — families wanting extra land, buyers looking for a small development opportunity, or anyone keen on countryside living within commuting reach. The plot size and views make an internal inspection worthwhile to appreciate both the home and the wider potential.
3 bedroom cottage for sale in Nottingham Road, Selston, NG16 — £350,000 • 3 bed • 1 bath • 1325 ft²
3 bedroom semi-detached house for sale in Cordy Lane, Brinsley, NG16 — £310,000 • 3 bed • 1 bath • 992 ft²
3 bedroom bungalow for sale in Cordy Lane, Brinsley, NG16 — £650,000 • 3 bed • 2 bath • 1367 ft²
3 bedroom character property for sale in Ramsdale Cottages, Oxton Road, Arnold, Nottingham, NG5 — £390,000 • 3 bed • 1 bath • 1089 ft²
2 bedroom detached house for sale in Blythe Road, Ollerton, Newark, NG22 — £375,000 • 2 bed • 1 bath • 2002 ft²
4 bedroom detached house for sale in Mansfield Road, Brinsley, NG16 — £300,000 • 4 bed • 2 bath • 1475 ft²










































































































































