Three-bedroom extended semi-detached home with mountain and rear field views
Newly renovated interior; modern kitchen and contemporary four-piece bathroom
Approved building regulations for a single-storey extension (scope to enlarge)
Driveway parking, decent rear garden, paved seating area and powered outhouse
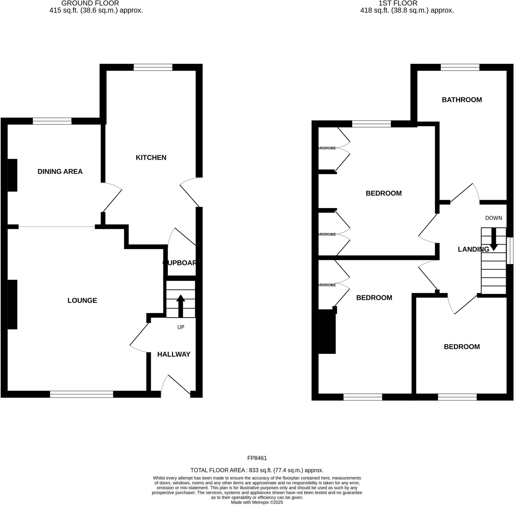
Freehold; overall size about 833 sq ft; affordable council tax banding
Heating details inconsistent in information (mentions electric storage heaters and gas boiler)
Property from 1930–1949 — expect age-related maintenance and typical wear
Rural-fringe location with very deprived area score despite fast broadband
This extended three-bedroom semi-detached house sits on the edge of Glan Conwy, offering front mountain views and open-field views to the rear. The home has been newly renovated with light, neutral décor throughout, a modern fitted kitchen and a contemporary four-piece bathroom—ready to move into with minimal immediate works.
Practical features include driveway parking, a decent rear garden with paved seating areas, an outhouse with power and light, and planning-approved building regulations for a single-storey extension—giving clear scope to enlarge living space subject to build work. The property is freehold and about 833 sq ft, suitable for growing families or first-time buyers seeking a modest, well-presented home in a village-fringe location.
Buyers should note a few material points: the listing information contains inconsistent heating details (references to both electric storage heaters and a gas-fired Valiant boiler), which should be clarified before purchase. The house dates from the 1930–1949 period so buyers should expect typical maintenance for an older home. The area scores as very deprived and local services are limited by the rural fringe location, although broadband is fast.
Overall this is a practical, light-filled three-bedroom home with clear potential to extend and personalise. It will suit purchasers wanting a renovated, move-in-ready property with room to grow — provided they check the heating system and factor in local amenity levels.
3 bedroom house for sale in Wyddfa, Glan Conwy, Colwyn Bay, LL28 — £234,500 • 3 bed • 1 bath • 732 ft²
3 bedroom detached house for sale in Llewelyn Avenue, Glan Conwy, LL28 — £390,000 • 3 bed • 3 bath • 1457 ft²
3 bedroom detached house for sale in Ffordd Naddyn, Glan Conwy, Colwyn Bay, Conwy, LL28 — £325,000 • 3 bed • 2 bath • 1155 ft²
3 bedroom semi-detached house for sale in Nant Yr Efail, Glan Conwy, Colwyn Bay, LL28 — £275,000 • 3 bed • 1 bath • 1389 ft²
3 bedroom semi-detached house for sale in Bryn Castell, Conwy, LL32 — £229,000 • 3 bed • 1 bath • 916 ft²
3 bedroom semi-detached house for sale in Wyddfa, Glan Conwy, LL28 — £239,500 • 3 bed • 1 bath • 732 ft²






















































































