Two-bedroom seaside apartment with parking and long lease near the promenade.
Large period building with high ceilings and sash windows
Share of freehold with 984 years remaining on the lease
Off-street parking — uncommon for central seafront properties
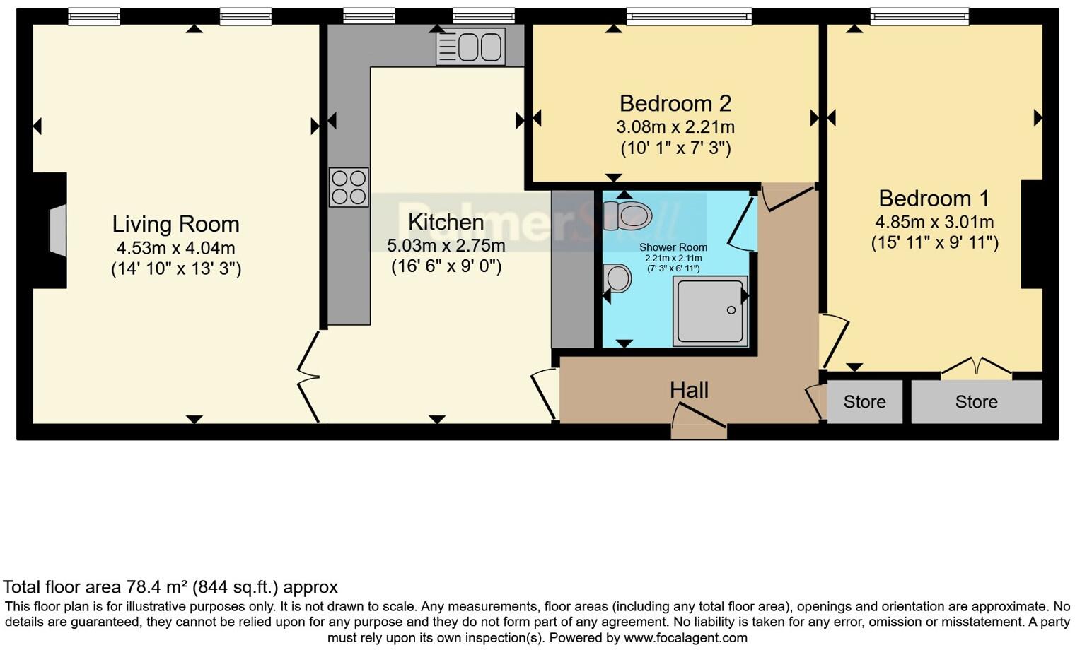
Spacious kitchen and bright lounge with large windows
Scaffolding visible in living room — some renovation likely needed
Service charge approximately £1,989 per year
Very high local crime and very deprived area — impacts resale/rental
Excellent mobile signal; average broadband speeds
Set on Weymouth’s Esplanade in a large period building, this two-bedroom flat combines high ceilings and generous room sizes with practical living. The long lease (984 years) and share of freehold give security, while off-street parking is a rare convenience for a central seafront address. The property’s large kitchen and bright lounge make it suitable for everyday living or holiday letting.
The building and apartment retain strong period character — high sash windows, tall ceilings and a fireplace — but there are signs of work in progress (scaffolding visible in the living room) and the flat may benefit from further cosmetic updating to maximise its appeal. Service charge is significant at about £1,989 per year and should be factored into running costs.
Location strengths are immediate: direct access to the promenade, extensive local amenities and excellent mobile signal. Be aware the wider area scores high for crime and socio-economic deprivation, and the neighbourhood includes student-oriented activity — factors that matter if you need a quieter setting or are considering long-term family occupation.
Overall this is a practical seaside apartment with character and clear potential. It suits buyers who value location and period features and who accept a higher service charge and urban context, or investors targeting coastal or short-let demand.
2 bedroom flat for sale in The Esplanade, Weymouth, Dorset, DT4 — £230,000 • 2 bed • 1 bath • 1000 ft²
1 bedroom apartment for sale in The Esplanade, Weymouth, DT4 — £170,000 • 1 bed • 1 bath • 466 ft²
2 bedroom flat for sale in The Esplanade, Weymouth, Dorset, DT4 — £175,000 • 2 bed • 2 bath • 570 ft²
2 bedroom flat for sale in Carlton Road North, Regina House, DT4 — £160,000 • 2 bed • 1 bath • 498 ft²
1 bedroom flat for sale in The Esplanade, Weymouth, DT4 — £180,000 • 1 bed • 1 bath • 556 ft²
2 bedroom apartment for sale in Dorchester Road, Weymouth, DT4 — £189,500 • 2 bed • 1 bath • 323 ft²






































































