Generous rooms, private driveway and south-west garden in a popular Uddingston suburb..
Detached three-bedroom home with optional fourth bedroom/reception room
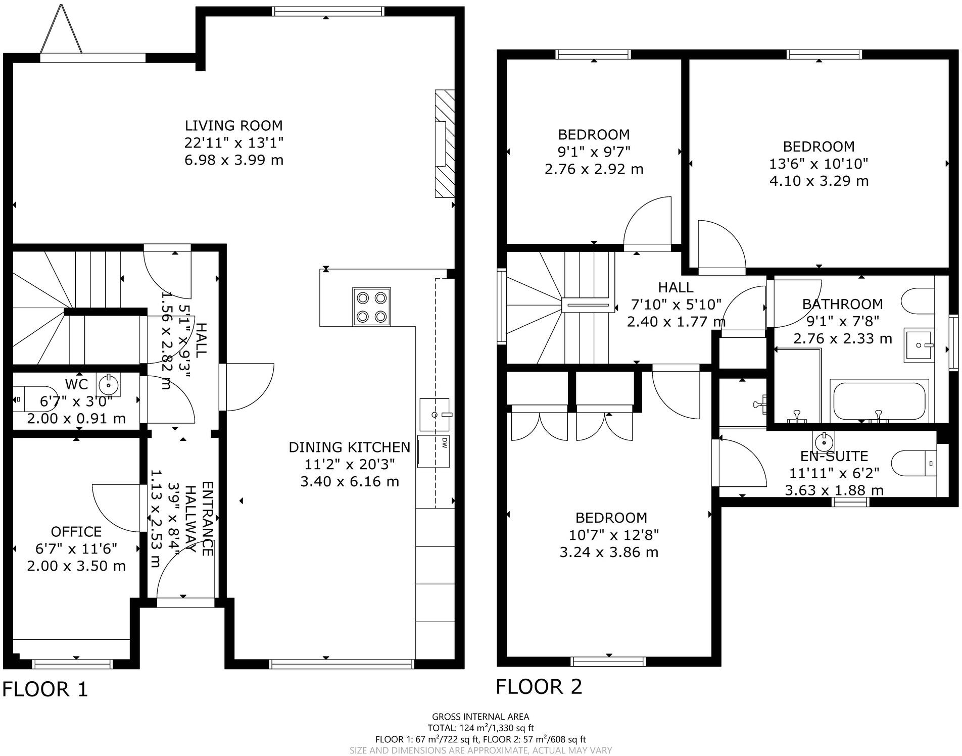
This well-presented three-bedroom detached home on Broomhouse Crescent offers adaptable living across a generous 1,264 sqft footprint. The house combines a stylish open-plan kitchen/dining area with a separate lounge featuring a bespoke media wall and direct access to a south-west facing private garden—ideal for family life and entertaining.
Upstairs are three large double bedrooms and a newly fitted family bathroom with a four-piece suite; the master bedroom includes a convenient en-suite. A versatile ground-floor reception currently used as a home office could serve as a fourth bedroom or additional living space. Practical features include gas central heating, double glazing and a private driveway providing off-street parking for multiple vehicles.
The location is a strong selling point: a comfortable suburban setting close to schools, shops, leisure facilities, parks and good transport links to Glasgow. There is no flooding risk and the property is freehold with an EPC rating of C, making it functionally efficient for modern living.
Notable considerations: the wider area is classified as very deprived, which may affect long-term resale values and local services; council tax is above average. Buyers should also factor in typical maintenance for a contemporary family home and verify any finishes or fixtures during viewing.
3 bedroom semi-detached house for sale in Milnwood Crescent, Uddingston, Glasgow, G71 — £235,000 • 3 bed • 3 bath • 818 ft²
3 bedroom semi-detached house for sale in Mossbeath Crescent, Uddingston, Glasgow, G71 — £229,000 • 3 bed • 3 bath • 839 ft²
3 bedroom detached house for sale in Broomhouse Crescent, Uddingston, G71 — £275,000 • 3 bed • 2 bath • 969 ft²
2 bedroom end of terrace house for sale in Coalburn Park, Uddingston, G71 — £265,000 • 2 bed • 2 bath • 679 ft²
3 bedroom semi-detached house for sale in Calderbank Road, Uddingston, Glasgow, Glasgow City, G71 — £245,000 • 3 bed • 2 bath
4 bedroom detached house for sale in Broomhouse Drive, Uddingston, Glasgow, G71 — £365,000 • 4 bed • 1 bath • 1415 ft²


















































































































