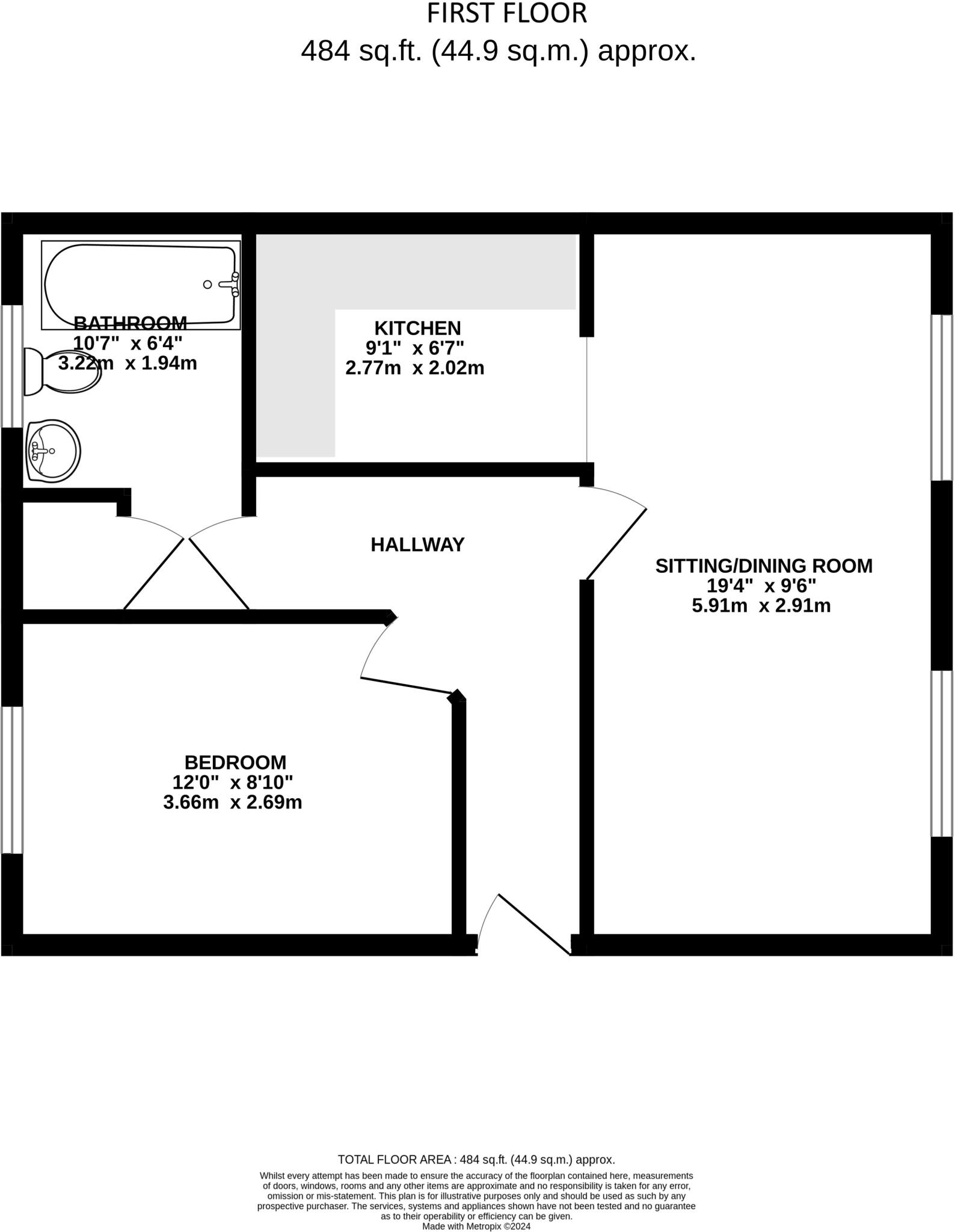
**Key Features:**
- First-floor, one-bedroom apartment in Markyate
- Allocated off-street parking
- Modern kitchen with stainless steel appliances
- Low crime rate in an affluent area
- Convenient access to M1 (2 miles) and Harpenden (5.9 miles)
- Total area of 484 sq ft
- Electric heating and secondary glazing
This charming first-floor apartment offers a cozy living space perfect for first-time buyers or investors seeking rental potential. The layout encompasses a spacious sitting/dining room, a modern kitchen equipped with quality appliances, a comfortable bedroom, and a well-proportioned bathroom—all designed for efficient living within its 484 sq ft area. Residents will enjoy the peace of a small-town environment, backed by the appeal of low crime rates and access to local amenities such as schools, cafes, and parks.
While the apartment is in generally sound condition, potential buyers should be mindful that it is leasehold, and future maintenance, including using electric storage heaters, may arise. This property combines modern living with suburban charm— seize the opportunity to make it your own in this desirable community!
2 bedroom apartment for sale in High Street, Markyate, St. Albans, Hertfordshire, AL3 — £275,000 • 2 bed • 1 bath • 858 ft²
2 bedroom apartment for sale in Pickford Road, Markyate, St. Albans, Hertfordshire, AL3 — £375,000 • 2 bed • 1 bath • 892 ft²
1 bedroom apartment for sale in Sebright Road, Markyate, AL3 — £185,000 • 1 bed • 1 bath • 513 ft²
1 bedroom apartment for sale in Flat 6 Hicks Road, Markyate, St Albans, AL3 — £239,000 • 1 bed • 1 bath • 555 ft²
1 bedroom flat for sale in Albert Street, Markyate, St. Albans, AL3 — £205,000 • 1 bed • 1 bath • 468 ft²
2 bedroom apartment for sale in Hicks Road, Markyate, St Albans, AL3 — £275,000 • 2 bed • 2 bath • 714 ft²






























