Spacious two-bedroom Victorian terrace moments from Hythe beach and town amenities..
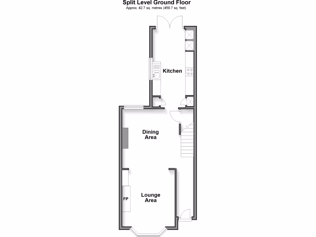
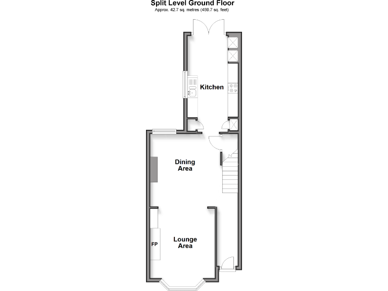
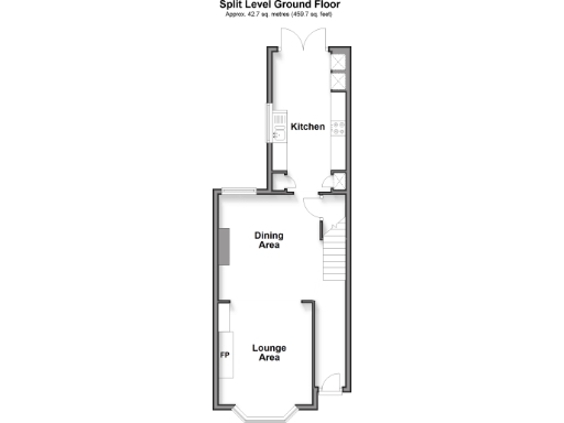
Large open-plan lounge and dining area with log burner
Modern kitchen with composite worktops and integrated appliances
Principal bedroom with large en-suite shower room
Short walk to beach, canal and busy High Street amenities
Low-maintenance front and rear gardens plus summer house
Solid brick walls likely without insulation — retrofit may be needed
Medium flood risk — specialist checks recommended
Freehold, gas central heating, double-glazed windows (post-2002)
Light-filled two-bedroom terraced home located in central Hythe, a short walk from the beach and Royal Military Canal. The ground floor offers a large open-plan lounge and dining area with a log burner, plus a contemporary kitchen fitted with composite worktops and integrated appliances. An upstairs principal bedroom benefits from a sizable en-suite shower room, and a second double bedroom sits alongside the family bathroom.
Outdoor space is low-maintenance: a small front and rear garden with a patio and a summer house make for easy upkeep and outdoor living close to the coast. The property is freehold, gas-heated with radiators, and fitted with double glazing installed after 2002. Local amenities include independent shops, cafes, sports clubs and several good-rated schools, making daily life convenient and attractive for families or first-time buyers.
Buyers should note the house is a solid-brick Victorian mid-terrace (c.1900–1929) with no known wall insulation, which could mean higher heating costs and scope for improvement. There is a medium flood risk for the area; interested parties should obtain specialist advice. Room sizes are generous for a two-bedroom terrace, offering potential to reconfigure or modernise further where desired.
2 bedroom terraced house for sale in Chapel Street, Hythe, Kent, CT21 — £250,000 • 2 bed • 1 bath • 583 ft²
2 bedroom end of terrace house for sale in Dymchurch Road, Hythe, CT21 — £215,000 • 2 bed • 1 bath • 484 ft²
2 bedroom semi-detached house for sale in Park Road, Hythe, Kent, CT21 — £265,000 • 2 bed • 1 bath • 730 ft²
2 bedroom detached house for sale in Windmill Street, Hythe, Kent, CT21 — £370,000 • 2 bed • 1 bath • 743 ft²
3 bedroom terraced house for sale in Lynton Road, Hythe, Kent, CT21 — £375,000 • 3 bed • 1 bath • 980 ft²
3 bedroom terraced house for sale in Frampton Road, Hythe, CT21 — £375,000 • 3 bed • 1 bath • 872 ft²










































































