Chain-free new-build with garden, NHBC warranty and integrated appliances.
3-bedroom semi-detached new-build with en suite to master
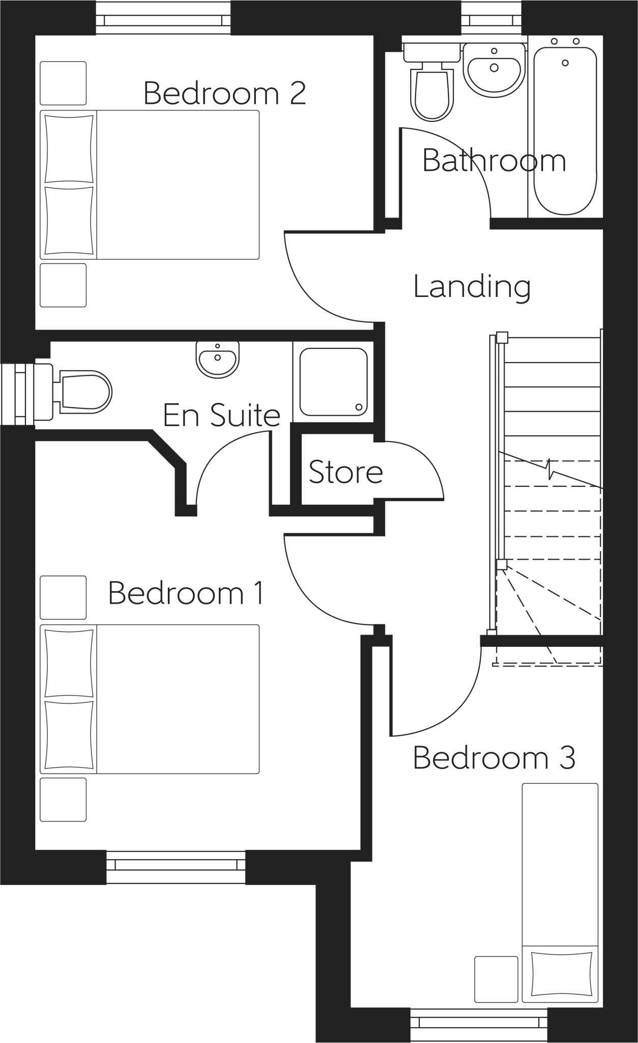
A brand-new three-bedroom semi-detached home on the Earl’s Way development in Glenrothes, offered chain free and finished to modern standards. The Kinloch presents an open-plan kitchen/dining area with integrated oven, hob and chimney hood, elegant French doors to a private rear garden and a front-facing living room. The master bedroom includes an en suite; family bathroom and Roca sanitaryware feature throughout.
Built in 2025 and backed by a 10-year NHBC Buildmark policy, the house includes energy-conscious touches shown in marketing (solar panels on CGI) and benefits from excellent mobile signal and fast broadband — useful for homeworking. The plot sits approximately one mile from Glenrothes town centre with nearby parks, schools and road links, making it practical for commuting and family life.
Practical considerations are clear: the development area is described as having high deprivation locally, and there is an Estate Management Charge of £329 per year. Council tax is band D (moderate). The internal area is around 928 sq ft — an average-sized footprint suitable for first-time buyers or small families seeking a low-maintenance new-build.
This home will suit buyers looking for a contemporary, move-in-ready property with new-build warranties and modern fittings, but those prioritising established neighbourhood character or larger gardens should note the suburban, modest-plot nature of the scheme.
3 bedroom semi-detached house for sale in Glenrothes,
Fife,
KY7 6PQ, KY7 — £254,995 • 3 bed • 1 bath • 955 ft²
3 bedroom semi-detached house for sale in Glenrothes,
Fife,
KY7 6PQ, KY7 — £254,995 • 3 bed • 1 bath • 955 ft²
4 bedroom detached house for sale in Glenrothes,
Fife,
KY7 6PQ, KY7 — £349,995 • 4 bed • 1 bath • 1410 ft²
3 bedroom detached house for sale in Glenrothes,
Fife,
KY7 6PQ, KY7 — £275,995 • 3 bed • 1 bath • 1072 ft²
4 bedroom detached house for sale in Glenrothes,
Fife,
KY7 6PQ, KY7 — £352,995 • 4 bed • 1 bath • 1410 ft²
4 bedroom detached house for sale in Glenrothes,
Fife,
KY7 6PQ, KY7 — £349,995 • 4 bed • 1 bath • 1410 ft²


























































