Spacious character home set in about 25 acres, one mile from Wells.
Grade II* listed country house dating to 17th century with later additions
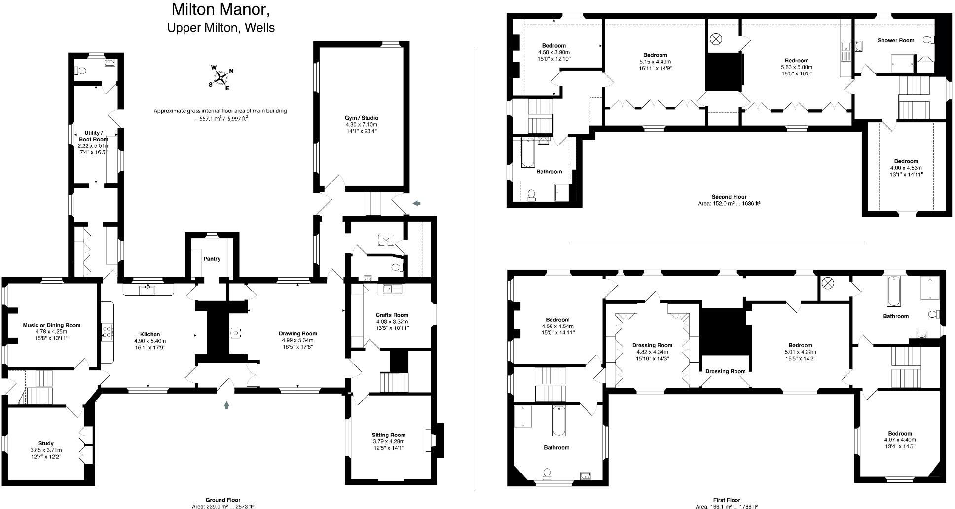
Milton Manor is an impressive Grade II* country house set in about 25 acres of paddock, woodland and formal garden, just a mile from the cathedral city of Wells. The substantial stone house offers almost 6,000 sq ft of flexible accommodation over three floors, seven bedrooms, four bathrooms and extensive stone outbuildings and yard with clear scope for garaging, workshops or stabling (subject to consents).
The house retains abundant period detail — flagstone floors, chamfered beams, panelling, mullioned windows and inglenook fireplaces — combined with thoughtful modern refinements such as a well-equipped kitchen, utility rooms and a large gym. The walled garden, paved courtyard and sweeping meadow create pleasing private outdoor spaces, while far-reaching rural views and mature specimen trees add strong landscape appeal.
Important practical points are also clear. The property is Grade II* listed, which preserves character but will restrict alterations and can complicate development of outbuildings. Heating is by oil-fired boiler with private drainage; the EPC is E and council tax is Band G. Broadband speeds are very slow and there are public footpaths crossing parts of the land.
This is a house for buyers seeking a historic, character-filled country home with substantial land and outbuildings. It will particularly suit families or buyers wanting equestrian, smallholding or diversified-use potential, and those comfortable navigating listed-building constraints and potential retrofit works.
7 bedroom detached house for sale in Manor house (with land) near Wells, BA5 — £2,250,000 • 7 bed • 4 bath • 5997 ft²
5 bedroom detached house for sale in West Horrington, Nr, Wells, BA5 — £1,950,000 • 5 bed • 3 bath • 4400 ft²
7 bedroom detached house for sale in Milton Road, Milton - Largest Property In The Area, BS22 — £900,000 • 7 bed • 4 bath • 5479 ft²
4 bedroom detached house for sale in Bath Road, Wells, BA5 — £675,000 • 4 bed • 2 bath • 1464 ft²
3 bedroom semi-detached house for sale in Wells, BA5 — £445,000 • 3 bed • 1 bath • 1281 ft²
8 bedroom detached house for sale in In reach of Glastonbury & Wells, BA16 — £2,750,000 • 8 bed • 4 bath • 11500 ft²










































































































































































































