Contemporary five-bed family home on a large plot by the South Downs.
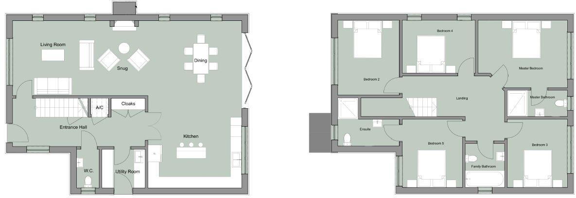
Five bedrooms with en-suites to main bedroom and bedroom five
Set within a boutique development of just six detached homes at the foot of the South Downs, this five-bedroom house is designed for modern family life. The open-plan living, dining and kitchen area provides a generous, sociable centre to the home, while a separate snug/study offers flexible space for homework, home working or a play area.
Practical features include an air-source heat pump with underfloor heating to the ground floor, Bosch appliances, stone worktops and en-suite facilities to the main bedroom and bedroom five. Outside there is off-road parking, a double garage and a large plot with private garden and patio — ideal for children and outdoor entertaining.
Buyers should note a few material points: broadband speeds in the area are reported as very slow, and a communal maintenance charge is listed as TBC. The property is a new build with a 10-year NHBC warranty and a 2-year customer care period, which reduces immediate maintenance risk but means some external landscaping and finishes may still be settling in.
This house suits growing families seeking quiet, semi-rural living with excellent local schools, very low crime and good mobile signal, while remaining within easy reach of village amenities and countryside walks.
5 bedroom detached house for sale in Storrington - Substantial Five Bedroom detached Homes, RH20 — £1,295,000 • 5 bed • 3 bath
3 bedroom detached house for sale in Storrington - Elegant Three Bedroom Detached Home, RH20 — £875,000 • 3 bed • 2 bath
5 bedroom detached house for sale in Greyfriars Lane, Storrington, West Sussex, RH20 — £1,450,000 • 5 bed • 3 bath • 2516 ft²
5 bedroom detached house for sale in Hillside Walk, Storrington, RH20 — £775,000 • 5 bed • 4 bath • 2217 ft²
4 bedroom detached house for sale in Eyebright Lane, Angmering, West Sussex, BN16 — £825,000 • 4 bed • 3 bath • 1968 ft²
5 bedroom semi-detached house for sale in Watermeadow Lane, Storrington, Pulborough, West Sussex, RH20 — £625,000 • 5 bed • 3 bath • 1193 ft²


































