**Standout Features:**
- Unique character property in a historic brewery conversion
- Three spacious double bedrooms
- Newly renovated kitchen and bathrooms
- High ceilings and original industrial elements
- Convenient garage and allocated parking
- Gated entrance for added security
- Excellent proximity to West Malling High Street and station
**Summary:**
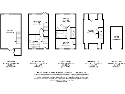
Discover this stunning Victorian industrial conversion in the heart of West Malling, where historical charm meets modern living. This spacious terraced townhouse, part of the iconic old brewery, boasts three generously sized double bedrooms, including a master with an ensuite. The newly designed kitchen features contemporary finishes, complemented by stylish flooring and ample natural light—an ideal setting for culinary enthusiasts. With high ceilings, expansive reception areas, and a dry basement showcasing original cast iron beams, this property exudes character throughout.
Outside, enjoy the tranquillity of two private courtyards while being just a short walk from vibrant shops, cafes, and local amenities on West Malling High Street. The property also includes a garage and allocated parking, making it perfect for those needing extra storage or a secure space for vehicles. Recently renovated, including a new gas central heating system installed in 2024, it promises low maintenance living.
While the area may present higher crime rates and council tax costs, the potential for future investment in this sought-after locale can be appealing for buyers looking for a unique home. This property caters to families, investors, or first-time buyers searching for a blend of modern comforts in a historical setting. Don’t miss out on this exclusive opportunity—schedule a viewing today!
2 bedroom apartment for sale in Historic Residence, The Terrace, Rochester, ME1 — £775,000 • 2 bed • 2 bath • 1723 ft²
1 bedroom apartment for sale in West Street, West Malling, ME19 — £220,000 • 1 bed • 1 bath • 629 ft²
3 bedroom detached house for sale in Offham Road, West Malling, ME19 — £475,000 • 3 bed • 2 bath • 1965 ft²
2 bedroom apartment for sale in Mill Street, East Malling, West Malling, ME19 — £425,000 • 2 bed • 1 bath • 1208 ft²
2 bedroom end of terrace house for sale in Old Parsonage Court, West Malling, ME19 — £425,000 • 2 bed • 2 bath • 827 ft²
5 bedroom semi-detached house for sale in Grade II Listed Home in the centre of West Malling, ME19 — £1,850,000 • 5 bed • 3 bath • 3891 ft²










































































