South-facing garden and driveway in a quiet cul-de-sac, ideal for families.
Three double bedrooms including principal with en-suite
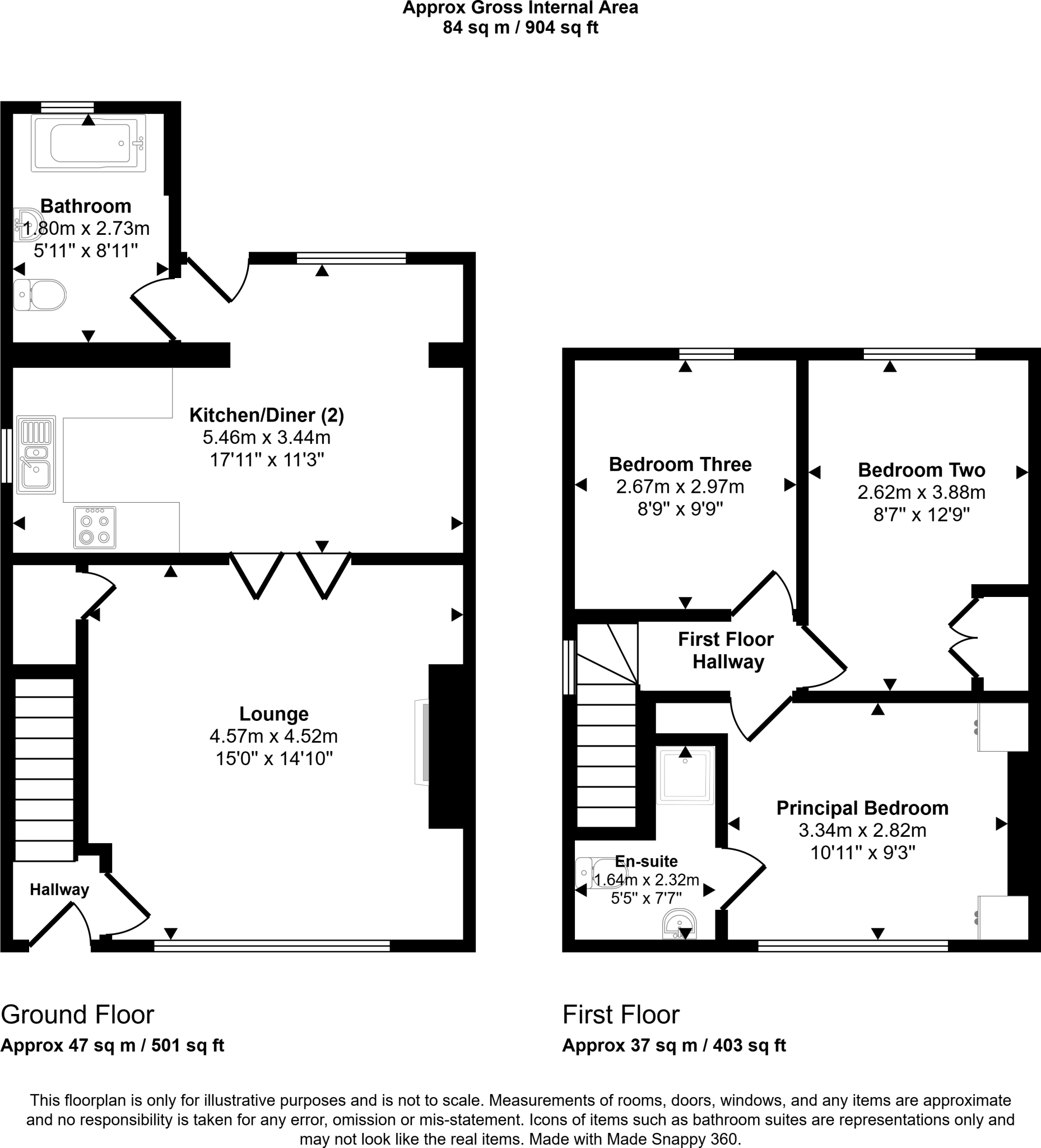
This neatly presented three-bedroom semi offers a practical family layout and has been newly renovated throughout. The principal bedroom includes an en-suite, and the ground floor provides a modern kitchen/dining area alongside a comfortable living room. Bright, neutral finishes and mains gas central heating make it move-in ready for buyers seeking convenience and low running costs.
Set in a quiet cul-de-sac, the house benefits from a south-facing rear garden and off-street driveway. Local amenities, good primary and secondary schools, Seaham Town Park and the beach are all within easy reach, while the A19 gives quick links to Sunderland and Durham. The property is freehold, in a very low-crime area with fast broadband and excellent mobile signal.
Practical points for buyers: the home sits on a small plot (approximately 904 sq ft internal), and images suggest potential areas that should be checked for damp—buyers are advised to arrange a survey. Double glazing is present, but the install date is unknown. Council tax is low, and the property has no identified flood risk.
Overall this is a well-located, renovated family home that balances modern convenience with manageable outdoor space. It will suit families wanting good schools and transport links close by, or buyers looking for a straightforward, low-maintenance home in a quiet neighbourhood.
3 bedroom semi-detached house for sale in Seaton Crescent, Seaham, SR7 — £190,000 • 3 bed • 2 bath • 516 ft²
3 bedroom semi-detached house for sale in Eppleton Hall Close, Seaham, Durham, SR7 — £200,000 • 3 bed • 1 bath • 850 ft²
3 bedroom semi-detached house for sale in Cheviot Gardens, Seaham, Co Durham, SR7 — £160,000 • 3 bed • 1 bath
3 bedroom semi-detached house for sale in Eppleton Hall Close, Seaham, County Durham, SR7 — £195,000 • 3 bed • 1 bath • 851 ft²
3 bedroom terraced house for sale in Byron Lodge, Seaton, Seaham, County Durham, SR7 — £145,000 • 3 bed • 1 bath • 1106 ft²
3 bedroom terraced house for sale in Seaham, Durham, SR7 — £159,950 • 3 bed • 1 bath


































































































