Quiet cul-de-sac bungalow with garden, garage and extension potential for downsizers.
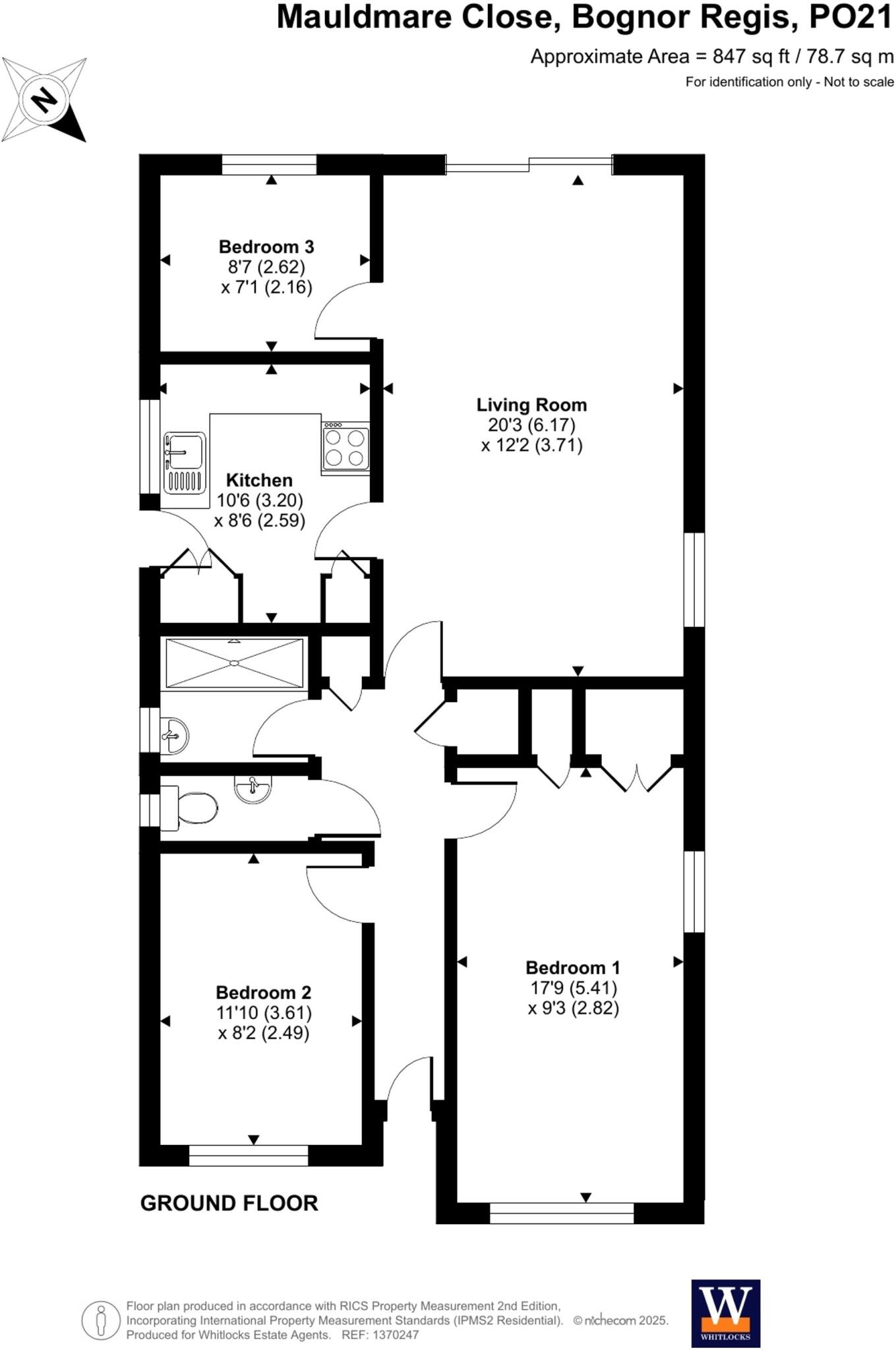
Detached three-bedroom bungalow with single-storey living, approx 883 sqft
Short walk to the beach, promenade and Aldwick shopping parade
Good-sized L-shaped rear garden with patio and privacy
Driveway for several cars plus garage with automatic door
No forward chain — available for a quicker move
Opportunity to extend (subject to planning permission)
Built 1967–75; requires modernisation and updates throughout
EPC F and council tax above average — potential energy/running costs
Tucked at the end of a quiet cul-de-sac in desirable Aldwick, this detached three-bedroom bungalow offers single-storey living just a short walk from the beach and promenade. The layout is practical: an entrance hall leads to a spacious living room with sliding doors onto a good-sized L-shaped rear garden, a kitchen with side access, two double bedrooms and a third room currently used as a dining room. A detached garage with automatic door and a wide driveway provide straightforward parking for several cars.
Offered with no forward chain, the property is well suited to someone looking to downsize without sacrificing outdoor space and seaside proximity. There is clear scope to personalise and modernise throughout — the bungalow dates from the late 1960s/1970s and would benefit from contemporary updating. The side garden also presents an opportunity for an extension, subject to planning permission.
Practical details to note: heating is provided by warm-air mains gas, double glazing was installed post-2002, and the home measures approximately 883 sq ft. The EPC is F and council tax is above average, so buyers should factor potential energy-improvement costs and running expenses into their plans. Overall this is a convenient, quiet, and flexible property that rewards some investment with comfortable seaside living and future value potential.
3 bedroom detached bungalow for sale in Mauldmare Close, Aldwick, Bognor Regis PO21 — £425,000 • 3 bed • 1 bath • 993 ft²
3 bedroom detached bungalow for sale in Lucerne Court, Aldwick, Bognor Regis PO21 — £400,000 • 3 bed • 2 bath • 1301 ft²
3 bedroom detached bungalow for sale in Boxgrove Gardens, Aldwick, Bognor Regis, West Sussex, PO21 — £425,000 • 3 bed • 1 bath • 1109 ft²
3 bedroom semi-detached bungalow for sale in Truro Crescent, Aldwick, Bognor Regis, West Sussex, PO21 — £335,000 • 3 bed • 1 bath • 999 ft²
3 bedroom bungalow for sale in Westminster Drive, Bognor Regis, West Sussex, PO21 — £390,000 • 3 bed • 1 bath • 880 ft²
2 bedroom detached bungalow for sale in Langley Grove, Aldwick, Bognor Regis, West Sussex, PO21 — £425,000 • 2 bed • 1 bath • 1106 ft²






















































