Modern, move-in-ready terraced home with driveway, garage and private garden — ideal for families..
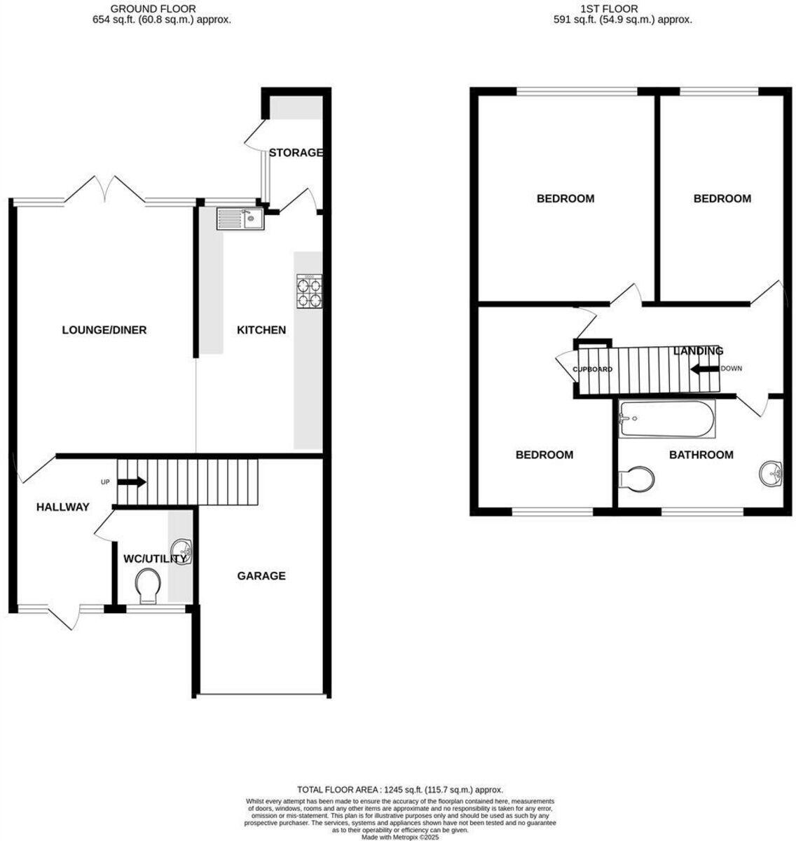
Three generous double bedrooms and large family bathroom
This three-bedroom mid-terrace on St. Marks Road has been extensively renovated over the last five years, offering a modern, move-in-ready home for families. The open-plan lounge and contemporary Wren kitchen with integrated oven, hob and NEFF dishwasher create a bright, sociable ground floor, while practical spaces such as a utility room, separate W/C and an additional storage room add day-to-day convenience.
Outside, the house benefits from a wide driveway for two cars plus an integral garage, and a private rear garden with patio and lawn enclosed by new fence panels — useful for children and pets. Recent upgrades include new UPVC double glazing, a full rewire with new consumer unit, a composite front door, and a boiler and radiators replaced two years ago, improving energy efficiency and reducing short-term maintenance needs.
The location is convenient for everyday life: Roscommon Way Shopping Centre is nearby, and Canvey Way gives easy access to the A13 and A130 for commuters. Local broadband speeds are fast and mobile signal is excellent, supporting home working and streaming.
Important practical points: the property sits in an area classified as deprived with higher-than-average crime levels, and the cavity walls are assumed to have no added insulation, which may affect long-term running costs. The plot is modest in size and there is a single main family bathroom serving three double bedrooms. These factors are worth considering alongside the substantial recent improvements.
4 bedroom detached house for sale in Green Avenue, Canvey Island, SS8 — £450,000 • 4 bed • 2 bath • 1303 ft²
3 bedroom detached house for sale in Urmond Road, Canvey Island, SS8 — £365,000 • 3 bed • 1 bath • 496 ft²
3 bedroom terraced house for sale in Wamburg Road, Canvey Island, SS8 — £325,000 • 3 bed • 2 bath • 798 ft²
3 bedroom semi-detached house for sale in The Picketts, Canvey Island, SS8 — £310,000 • 3 bed • 1 bath • 988 ft²
3 bedroom end of terrace house for sale in Link Road, Canvey Island, SS8 — £290,000 • 3 bed • 2 bath • 906 ft²
4 bedroom detached house for sale in Long Road, Canvey Island, SS8 — £475,000 • 4 bed • 2 bath


































































