Contemporary four-bed family home on a large private plot in prosperous countryside..
High-spec new stone-built detached home
Underfloor heating to ground floor
22' x 17' kitchen/diner with lantern garden room
Three of four bedrooms have en suites
Oversized double garage and wide driveway parking
Large south‑westerly private rear garden (landscaping unfinished)
Medium flood risk for the area
Internal floor area approx. 992 sq ft
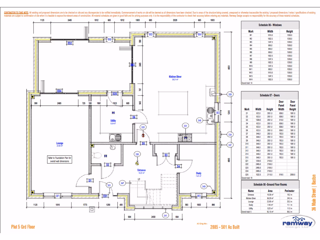
A newly built, stone‑faced detached family home set in a private cul‑de‑sac within an established farming community. The house is finished to a high specification with contemporary features including large windows, a double‑height entrance, and underfloor heating to the ground floor.
The ground floor offers a generous 22' x 17' kitchen/dining area that flows into a lantern‑roofed garden room with bi‑fold doors onto a south‑westerly private garden. Upstairs there are four bedrooms, three of which have en suites, providing flexible family living and good privacy for guests or older children.
Practical advantages include an oversized double garage, a wide driveway with additional parking, excellent mobile signal and fast broadband, and a very low local crime rate. The plot is large and private, though the rear garden landscaping is currently unfinished and will require work to reach its full potential.
Buyers should note the property’s medium flood risk and that the internal floor area is approximately 992 sq ft. Overall this home will suit families seeking a contemporary, high‑specification house in a prosperous, rural setting with scope to personalise finishes.
4 bedroom detached house for sale in Main Street, Baston, Market Deeping, PE6 — £820,000 • 4 bed • 4 bath • 1152 ft²
3 bedroom detached house for sale in Main Street, Baston, PE6 — £425,000 • 3 bed • 2 bath • 1960 ft²
4 bedroom detached house for sale in Cardyke Drive, Baston, Market Deeping, PE6 — £385,000 • 4 bed • 2 bath
4 bedroom detached house for sale in Hadrian Drive, Baston, Market Deeping, PE6 — £475,000 • 4 bed • 2 bath • 1594 ft²
4 bedroom detached house for sale in Main Road, Toft, Bourne, PE10 — £795,000 • 4 bed • 3 bath
5 bedroom detached house for sale in Chariots Way, BASTON, Peterborough, PE6 — £525,000 • 5 bed • 2 bath • 1690 ft²






















































































































































































































