**Standout Features:**
- Three spacious double bedrooms
- Open split-level living room/diner with large windows
- Breakfasting kitchen with ample storage and workspace
- Driveway and garage, ideal for multiple vehicles
- Front, side, and rear gardens with mature shrubs
- EPC Rating: D
- Excellent mobile signal and fast broadband speeds
**Concerns:**
- Requires some maintenance and renovation
- Located in a generally deprived area
- Above-average council tax
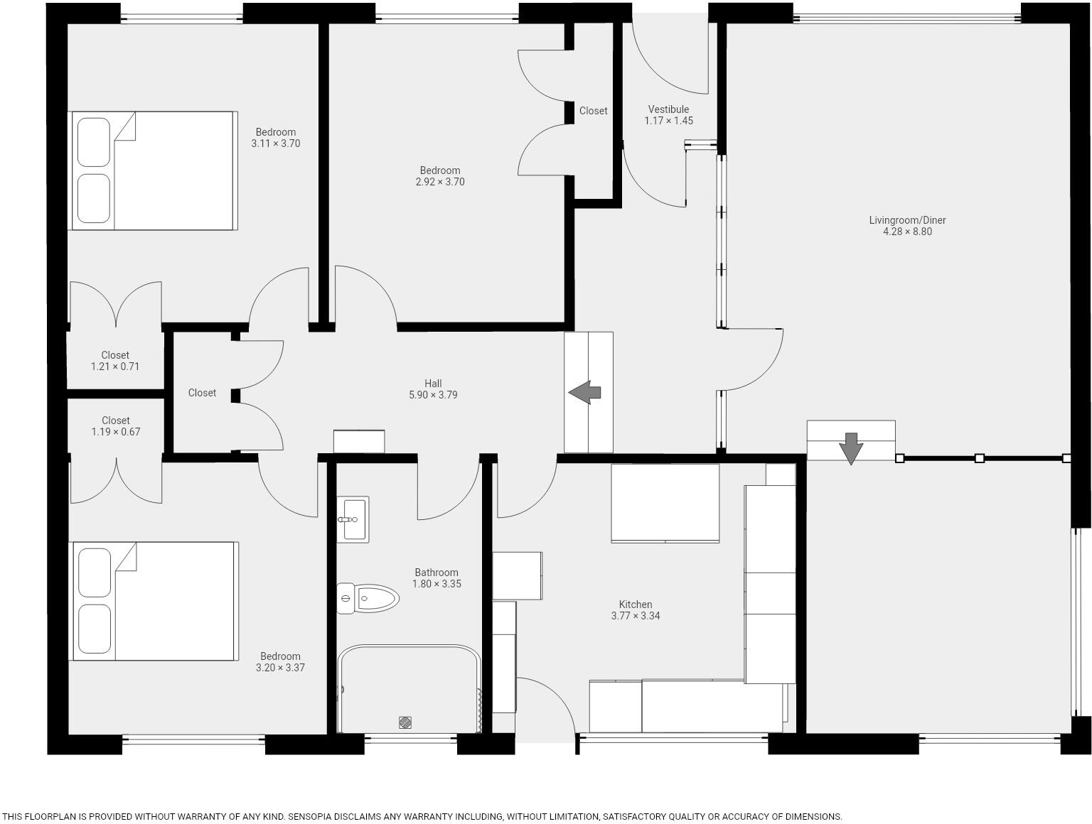
Nestled in the charming village of Braidwood, this three-bedroom detached bungalow offers a welcoming retreat just minutes from Carluke and Lanark. Featuring a delightful split-level living room with ample natural light and a connected dining area, this home is perfect for entertaining. The breakfasting kitchen boasts plenty of counter space and storage, making everyday cooking a pleasure. Each of the three double bedrooms provides generous space and built-in storage, ensuring comfort and convenience.
This property is an excellent opportunity for families or first-time buyers seeking a peaceful village lifestyle, with the potential for personal modernization. The front, side, and rear gardens offer room for outdoor enjoyment, while the accessible driveway and garage ensure hassle-free parking. Keep in mind, this bungalow holds renovation potential, allowing you to truly make it your own. Given its desirable features and location, don’t miss your chance—properties like this in Braidwood are in high demand and won’t last long! Closing date set for Thursday, July 31st, at 12 noon.
3 bedroom detached bungalow for sale in Wellburn Lane, Lesmahagow, ML11 — £225,000 • 3 bed • 2 bath • 1066 ft²
3 bedroom semi-detached house for sale in Nellfield Court, Braidwood, ML8 — £159,995 • 3 bed • 1 bath • 859 ft²
3 bedroom bungalow for sale in Lythgow Way, Lanark, ML11 — £239,000 • 3 bed • 1 bath • 1056 ft²
3 bedroom detached bungalow for sale in East Forth Drive, Forth, ML11 8AL, ML11 — £240,000 • 3 bed • 1 bath • 1163 ft²
3 bedroom detached bungalow for sale in Lanark Road, Braidwood, Carluke, ML8 — £349,995 • 3 bed • 2 bath • 1207 ft²
3 bedroom detached bungalow for sale in Allanton Road, Allanton, ML7 — £194,995 • 3 bed • 1 bath • 906 ft²


































































































