**Standout Features:**
- Characterful five-bedroom detached home dating back over 300 years
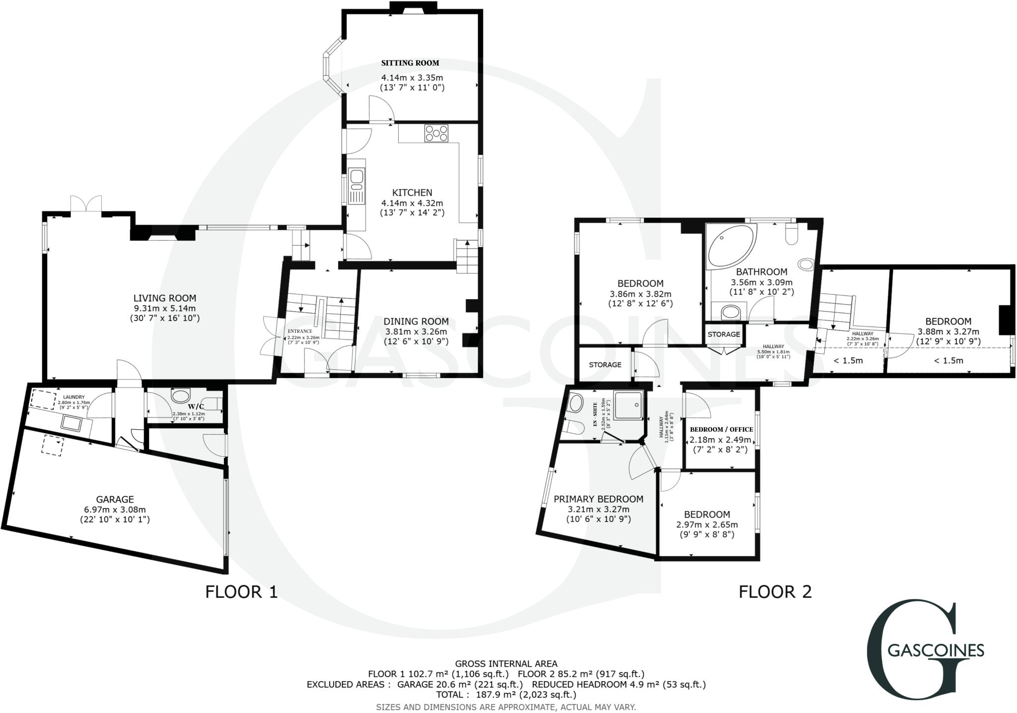
- Spacious living with a 23ft lounge, two additional reception rooms, and utility room
- Large rear garden with patio area, ideal for family gatherings and outdoor activities
- Original features like exposed beams and traditional fireplaces, providing unique charm
- Off-road parking with a driveway leading to an electric garage
- No upward chain, making it an appealing choice for a quick move
**Summary:**
This characterful five-bedroom detached family home in the picturesque village of Laxton is a rare find, steeped in history and charm, yet offering modern living space. The property, believed to date back approximately 300 years, features exposed beams and fireplaces that add warmth and uniqueness. Currently needing some renovation, particularly in the dining room where damp issues are present, this home offers the potential for personalization and enhancement.
The generous plot boasts a large, mature garden, perfect for outdoor entertaining, while inside, the layout offers spacious versatility with a welcoming hallway, a fitted kitchen with modern appliances, and a spacious 23ft lounge that opens onto the patio. Four ample double bedrooms are complemented by a single room, with the principal bedroom featuring an en-suite shower room.
With good transport links to Newark and Southwell, and no upward chain, this property presents an ideal opportunity for families seeking comfort, space, and a tranquil rural lifestyle. Don't miss out on this unique chance to secure a distinguished home in a desirable village setting!
4 bedroom detached house for sale in Moorhouse Road, Laxton, Newark, Nottinghamshire, NG22 — £525,000 • 4 bed • 2 bath • 1770 ft²
4 bedroom detached house for sale in Main Street, Kneesall, Newark, NG22 — £500,000 • 4 bed • 2 bath • 1534 ft²
4 bedroom detached house for sale in Main Street, Laxton, Newark, Nottinghamshire, NG22 — £650,000 • 4 bed • 2 bath • 2056 ft²
3 bedroom cottage for sale in The Bar, Laxton, Newark, NG22 — £415,000 • 3 bed • 1 bath • 1109 ft²
5 bedroom detached house for sale in Moor Lane, Syerston, NG23 — £830,000 • 5 bed • 3 bath • 3300 ft²
4 bedroom farm house for sale in Main Street, Kneesall, NG22 — £550,000 • 4 bed • 2 bath • 2656 ft²










































































































