Easy commute to Norbury with nearby parks and strong connectivity.
- Freehold Victorian terrace with bay windows and period character
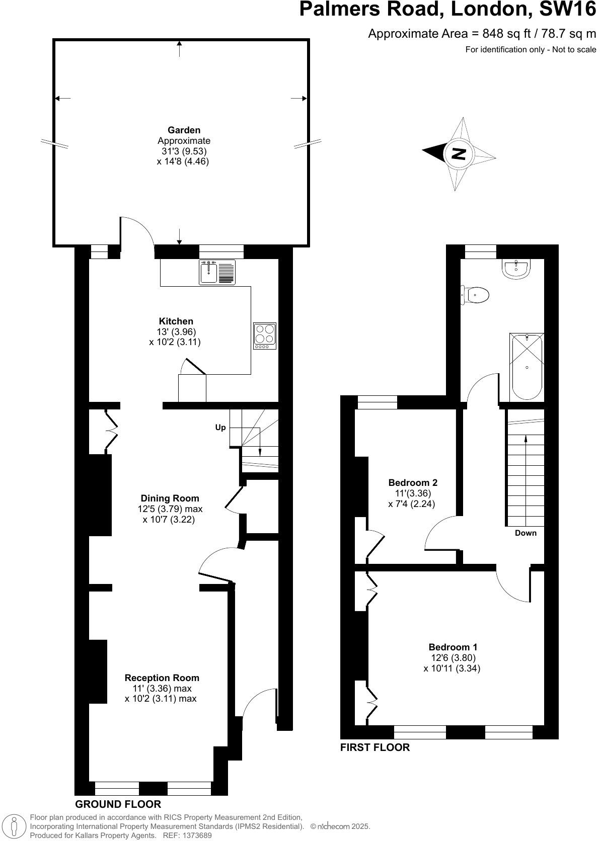
- Two bedrooms, one upstairs bathroom; move-in ready presentation
- Small rear garden and modest front garden, low maintenance
- Approx. 848 sqft; average-sized rooms, compact living layout
- Solid brick walls likely without cavity insulation; retrofit potential
- Double glazing fitted pre-2002; may require upgrade for efficiency
- Mains gas boiler and radiators; standard heating system
- Area classified as deprived; nearby amenities and good transport links
Set on a Victorian terrace in SW16, this freehold two-bedroom house offers well-presented, ready-to-move-in accommodation across around 848 sqft. The layout includes a comfortable reception, a practical kitchen, two upstairs bedrooms and a single bathroom — a straightforward home for first-time buyers or those downsizing. Natural light and period bay windows add character to the living spaces.
Outside, a small front garden and modest rear garden provide low-maintenance outdoor space. The property sits close to Norbury with good public transport links and local amenities, and nearby green space offers easy weekend walks. Broadband and mobile signal are strong, supporting hybrid working.
Buyers should note the house dates from c.1900–1929 with solid brick walls likely without cavity insulation. Double glazing was installed before 2002 and the main heating is a mains-gas boiler with radiators. The small plot and average-sized rooms mean it’s compact rather than spacious; there is potential to improve energy efficiency and modernise finishes where desired.
This home is best suited to first-time buyers or investors seeking a well-located, characterful property with scope for targeted refurbishment and value-adding improvements. Council tax is moderate and there is no identified flood risk, but the surrounding area is classified as relatively deprived, which buyers should consider when weighing longer-term investment prospects.
2 bedroom terraced house for sale in Palmers Road, London SW16 — £475,000 • 2 bed • 1 bath • 848 ft²
3 bedroom terraced house for sale in Hassocks Road, London, SW16 — £480,000 • 3 bed • 2 bath • 855 ft²
3 bedroom terraced house for sale in Tylecroft Road, Norbury, London, SW16 — £480,000 • 3 bed • 2 bath • 1064 ft²
2 bedroom terraced house for sale in Norton Gardens, LONDON, SW16 — £450,000 • 2 bed • 1 bath • 759 ft²
2 bedroom end of terrace house for sale in Oakhill Road, London, SW16 — £375,000 • 2 bed • 2 bath • 537 ft²
2 bedroom terraced house for sale in Northborough Road, London, SW16 — £450,000 • 2 bed • 1 bath • 611 ft²


















































































