Centrally placed for commuters and local schools, ready to improve.
Chain free three-bedroom semi-detached bungalow, good commuter location
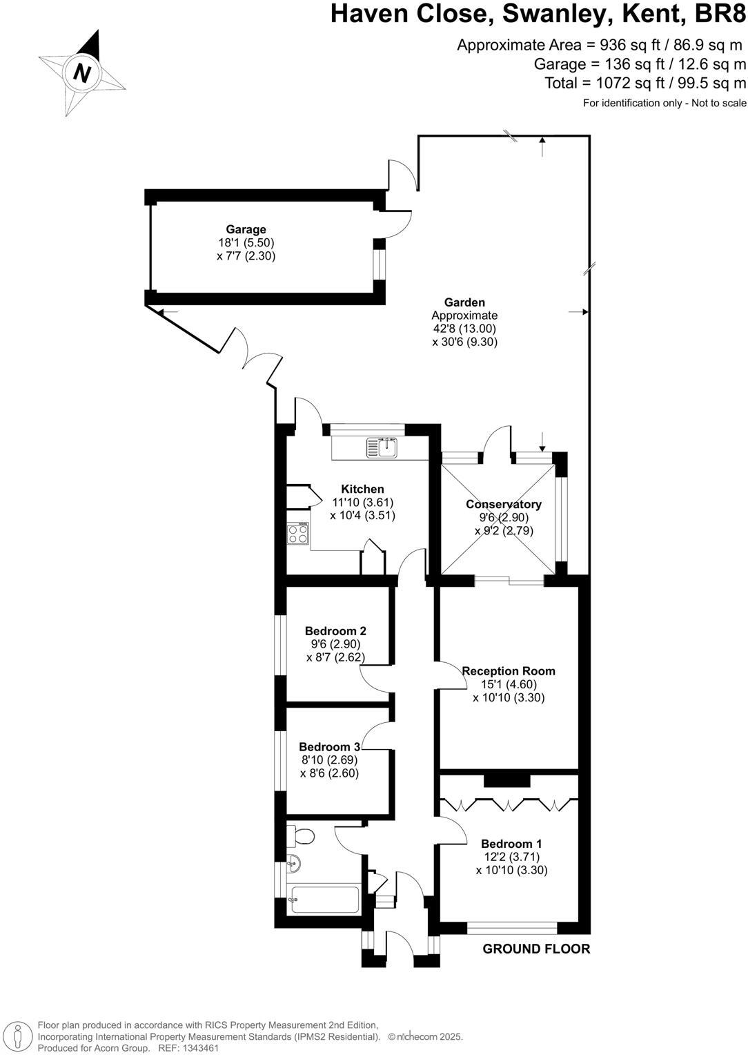
This three-bedroom semi-detached bungalow on Haven Close offers practical, family-friendly accommodation in a popular Swanley cul-de-sac. The property sits on a decent plot with a lawned rear garden, side access to a garage and off-street parking — useful for commuters and parents juggling school runs. Swanley mainline station is a short walk away with direct, roughly twenty-minute services into central London (Oyster Zone). Local primary and secondary schools are nearby, including two grammar schools within easy reach.
Internally the house provides a lounge/diner, conservatory and kitchen with a straightforward, traditional layout across approximately 936 sq ft. The accommodation has already been extended and benefits from double glazing and gas central heating, making it ready to occupy while offering practical scope to improve. Many nearby properties have added loft conversions and there is clear potential here to extend subject to planning permission (STPP), which could significantly increase living space and value.
Buyers should note the tangible maintenance and energy items: the EPC rating is D and the original solid brick walls are likely uninsulated, so improving thermal performance would be a sensible medium-term project. There is a single bathroom and the decoration/flooring appears dated in places, so some updating would be required to bring the home up to a modern finish. The property is offered freehold and chain free, making a swift move possible for the right purchaser.
Overall this is a well-located, affordably priced family home with commuter convenience and clear scope to add value through renovation or an extension. It will suit buyers seeking a ready-to-live-in house with future improvement potential rather than a turnkey contemporary finish.
3 bedroom semi-detached house for sale in Haven Close, Swanley, Kent, BR8 — £450,000 • 3 bed • 1 bath • 1121 ft²
2 bedroom semi-detached bungalow for sale in Haven Close, Swanley, BR8 — £400,000 • 2 bed • 1 bath • 647 ft²
3 bedroom semi-detached house for sale in Leechcroft Avenue, Swanley, Kent, BR8 — £375,000 • 3 bed • 1 bath • 910 ft²
3 bedroom semi-detached house for sale in Haven Close, Swanley, Kent, BR8 — £450,000 • 3 bed • 1 bath • 960 ft²
3 bedroom semi-detached house for sale in Haven Close, Swanley, Kent, BR8 — £450,000 • 3 bed • 2 bath • 1183 ft²
3 bedroom bungalow for sale in King Harolds Way, Bexleyheath, DA7 — £470,000 • 3 bed • 1 bath






























































































