Three-bedroom home near Gravesend town centre ideal for growing families.
Three double bedrooms, spacious master with bay window
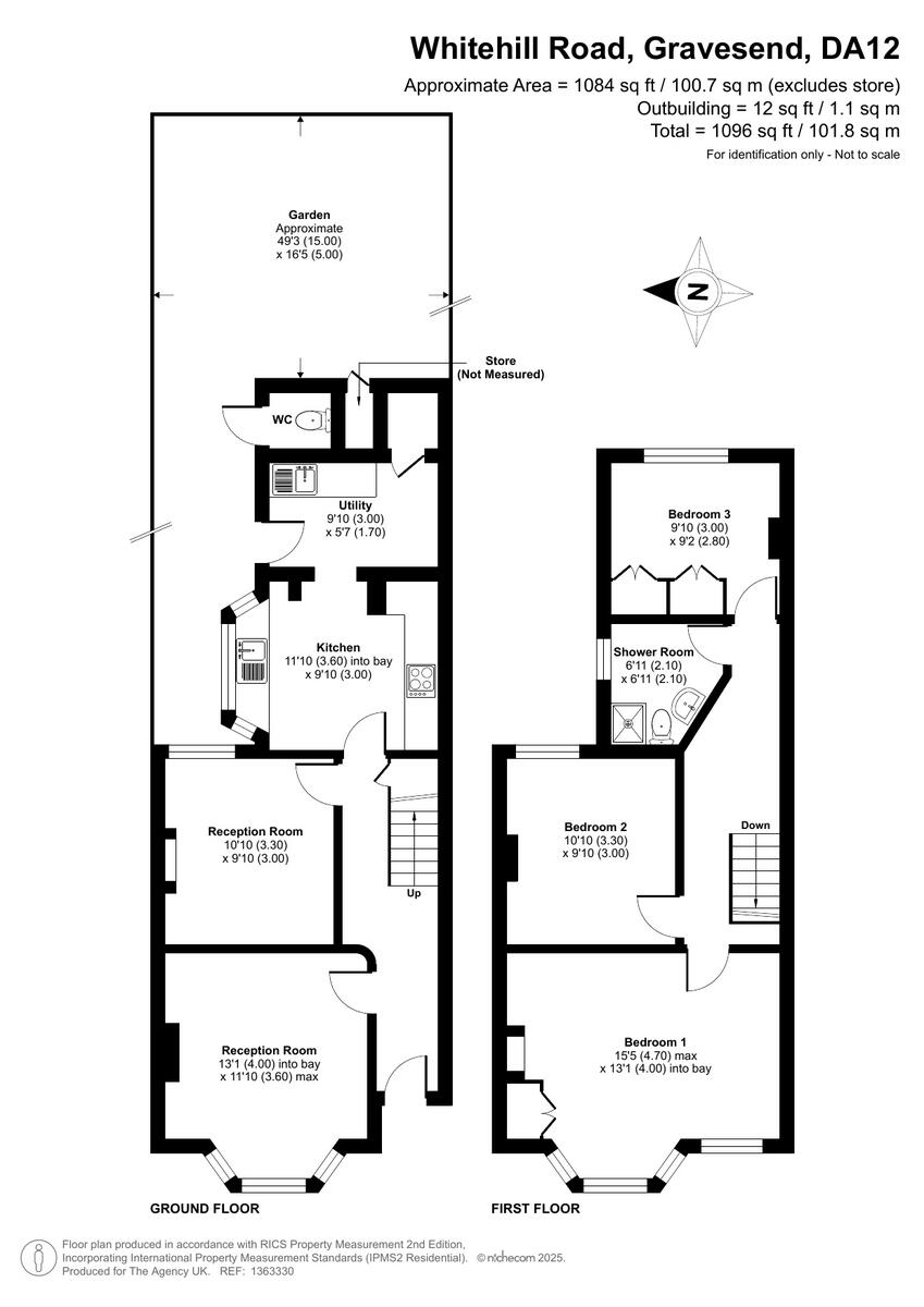
A well-presented three-bedroom Victorian end-of-terrace offering classic character and practical family living. High ceilings, a front bay and two reception rooms create bright, adaptable living space for relaxation and dining. The fitted kitchen, separate utility room, garden store and outside WC add everyday convenience.
Upstairs provides three comfortable bedrooms and a modern family bathroom. A spacious loft with neighbouring examples already extended offers clear potential for extra accommodation, subject to planning permission. The rear garden is low-maintenance and suits young families; the small plot size keeps outdoor upkeep straightforward.
Practical benefits include gas central heating, double glazing, fast broadband and excellent mobile signal. Located within walking distance of Gravesend town centre, schools and transport links, the property suits families who want local amenities and easy commuter connections. Important considerations: the home has an EPC rating of D, solid brick walls likely lack cavity insulation, a single bathroom serves three bedrooms, and any off-street parking requires permission.
3 bedroom terraced house for sale in Hillingdon Road, Gravesend, Kent, DA11 — £425,000 • 3 bed • 2 bath • 1382 ft²
3 bedroom terraced house for sale in Dover Road East, Northfleet, Kent, DA11 — £325,000 • 3 bed • 1 bath • 1058 ft²
3 bedroom terraced house for sale in Cross Lane East, Gravesend, DA12 — £400,000 • 3 bed • 1 bath • 1261 ft²
3 bedroom terraced house for sale in Denton Street, Gravesend, Kent, DA12 — £335,000 • 3 bed • 1 bath • 911 ft²
3 bedroom terraced house for sale in Suffolk Road, Gravesend, Kent, DA12 — £250,000 • 3 bed • 1 bath • 727 ft²
3 bedroom terraced house for sale in Cross Lane East, Gravesend, Kent, DA12 — £350,000 • 3 bed • 1 bath • 1004 ft²


















































