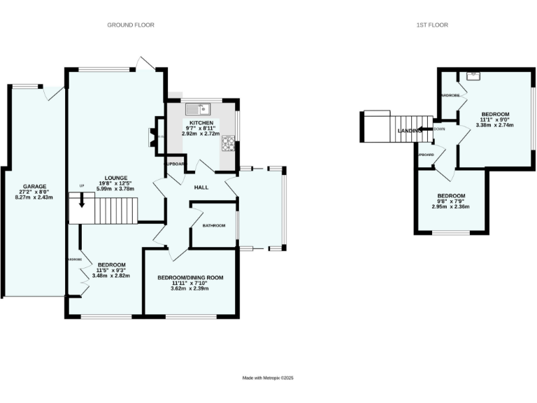
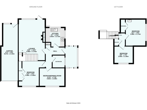
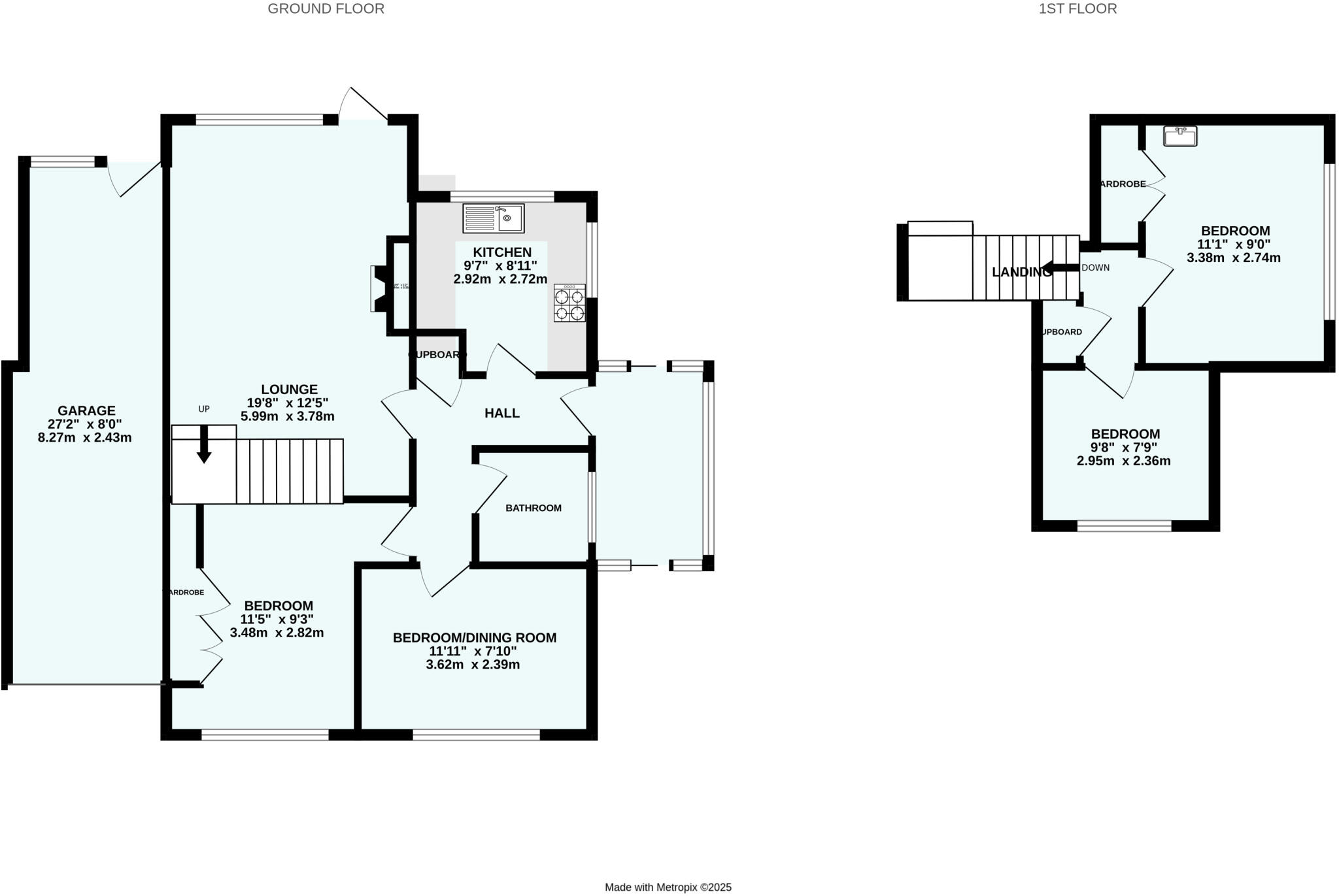
**Standout Features:**
- Three well-lit bedrooms
- Spacious detached bungalow in a quiet residential area
- Moderate garden space with front lawn and expansive backyard
- Chain-free property, allowing for a swift move-in
- Close proximity to local shops, schools, and community amenities
**Notable Concerns:**
- Located in a higher crime area
- Cavity wall construction, assumed to have no insulation
- Average mobile signal, though fast broadband is available
**Summary:**
This charming three-bedroom detached bungalow in the desirable Shiphay neighborhood presents an ideal opportunity for families or first-time buyers seeking a comfortable and spacious home. The property boasts abundant natural light in its well-proportioned rooms and features a handsomely sized backyard that is perfect for gardening or recreational activities.
Being chain-free allows for a smooth transition to your new home, while the local amenities, including shops and highly-rated primary and secondary schools, are just a short walk away. Although it’s located in an area with above-average crime, its attractive price of £300,000 and potential for further enhancement make this bungalow a valuable find for those wanting to invest in a pleasant residential community. Don't miss out on the chance to explore this cozy retreat that balances tranquil living with convenient access to the vibrant life of Torquay.
3 bedroom detached house for sale in Heywood Close, Torquay, TQ2 — £325,000 • 3 bed • 2 bath • 990 ft²
3 bedroom bungalow for sale in Collaton Road, Torquay, TQ2 — £375,000 • 3 bed • 2 bath • 1474 ft²
3 bedroom semi-detached house for sale in Chiltern Close, Livermead, Torquay, Devon, TQ2 — £350,000 • 3 bed • 2 bath • 863 ft²
3 bedroom semi-detached bungalow for sale in Newton Road, TORQUAY, Devon. , TQ2 — £295,000 • 3 bed • 2 bath • 909 ft²
3 bedroom bungalow for sale in The Conifers, Torquay, Devon, TQ2 — £425,000 • 3 bed • 2 bath • 1751 ft²
2 bedroom detached house for sale in Cornacre Road, Shiphay, Torquay, Devon, TQ2 — £370,000 • 2 bed • 1 bath • 658 ft²










































