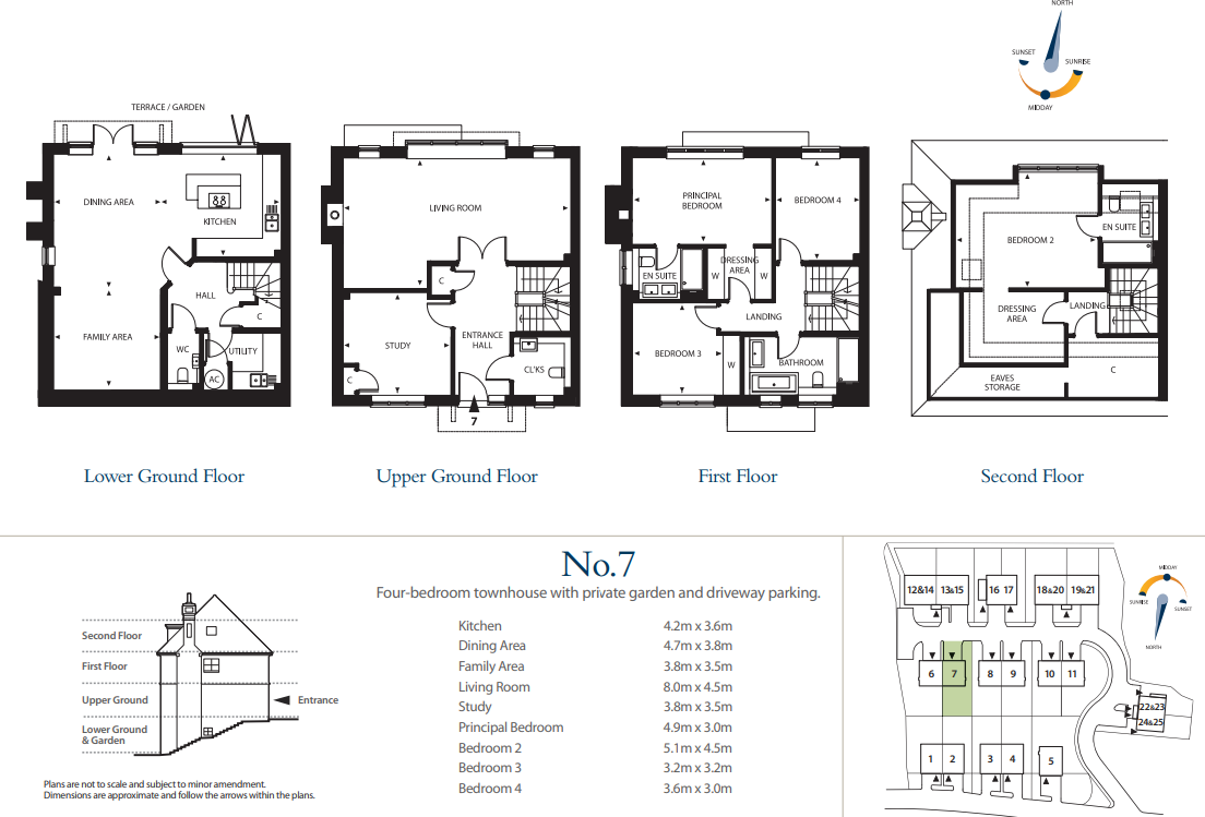
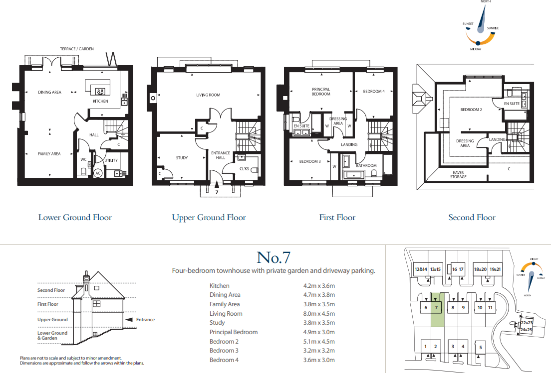
High-spec family living with large garden and impressive elevated views.
- Approximately 2,438 sq ft of flexible living space
- Four bedrooms, three bathrooms; principal and top-floor suites
- Lower-ground open-plan kitchen, dining and living with garden access
- Large private garden and terrace; elevated, far-reaching views
- Garage plus private driveway parking for multiple cars
- High-spec new build: insulated, media connectivity, Siemens appliances
- Semi-detached (not detached); some eaves have reduced headroom
- External images CGI and internal images indicative of show home
This substantial four-bedroom semi-detached home delivers flexible family living across large, well-planned floors (approximately 2,438 sq ft). Built by an award-winning Surrey developer, the house offers high-spec kitchens and contemporary sanitaryware, excellent insulation and wired media connectivity for modern life. The principal and top-floor suites both include dressing areas and en suites, giving practical private space for family members or guests.
The lower-ground open-plan kitchen, dining and living hub opens directly onto a generous private garden via glazed doors, creating seamless indoor–outdoor entertaining. Garage and private driveway parking add convenience for multiple vehicles. Elevated positioning provides far-reaching, breath-taking views and a peaceful aspect while remaining within convenient walking distance of Haslemere town centre and local schools.
This is a new-build freehold with very low immediate maintenance and strong energy-efficiency credentials. Practical notes: the property is semi-detached rather than detached, some marketing images are CGI or show-home photographs for illustration, and the top-floor eaves include storage but reduced headroom in places. Overall, the home suits families seeking spacious, modern accommodation in an affluent Surrey setting with excellent commuting links.
4 bedroom semi-detached house for sale in Haslemere Heights, Hill Road, Haslemere, Surrey, GU27 — £1,450,000 • 4 bed • 3 bath • 2438 ft²
3 bedroom semi-detached house for sale in Haslemere Heights, Hill Road, Haslemere, Surrey, GU27 — £1,100,000 • 3 bed • 3 bath • 1691 ft²
3 bedroom detached house for sale in Haslemere Heights, Hill Road, Haslemere, Surrey, GU27 — £1,475,000 • 3 bed • 2 bath • 2623 ft²
2 bedroom apartment for sale in Haslemere Heights, Hill Road, Haslemere, Surrey, GU27 — £750,000 • 2 bed • 2 bath • 1249 ft²
4 bedroom semi-detached house for sale in Manor Crescent, Haslemere, GU27 — £650,000 • 4 bed • 2 bath • 1282 ft²
5 bedroom detached house for sale in Longdene Road, HASLEMERE, GU27 — £1,495,000 • 5 bed • 4 bath • 3437 ft²






































































































