Spacious modern family residence with large garden and double garage.
Five generous bedrooms, two with en-suite shower rooms
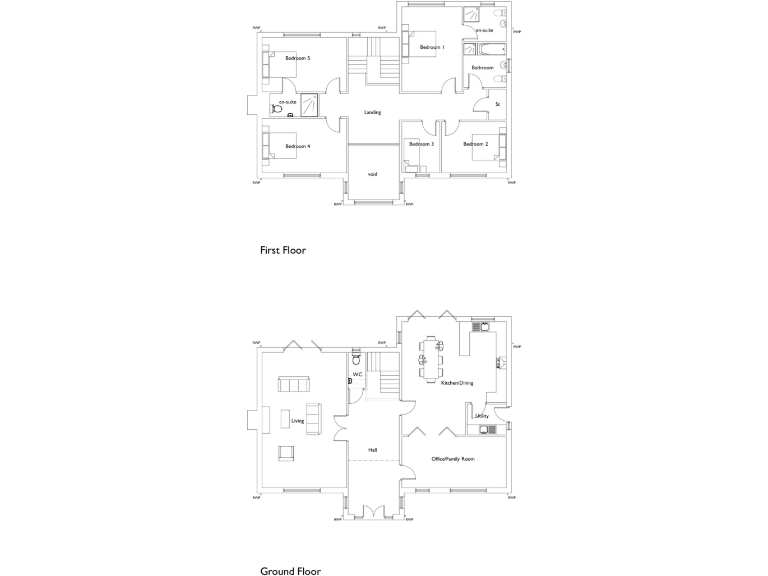
A newly built five-bedroom detached home finished to a high specification, offering around 2,605 sq ft of contemporary family living. The ground floor benefits from underfloor heating, an expansive open-plan dining kitchen with integrated appliances, a separate utility and a generous living room — all arranged around a dramatic central entrance hall and oak staircase.
Upstairs provides five well-proportioned bedrooms, two en-suites and a four-piece family bathroom. Floor-to-ceiling windows on the first-floor landing create a bright, flexible space ideal for a study or quiet reading nook. The property sits on a very large plot with a manicured lawn, sleek porcelain patios and a detached double garage with driveway parking.
Practical features include LPG-fed central heating, double glazing and a C-rated EPC. As a brand new build (completed 2024) the house needs minimal immediate work, but the large plot will require regular upkeep. The hamlet location offers tranquillity and proximity to several good local primary and secondary schools, though local amenities are limited compared with larger settlements.
This home will suit families seeking generous contemporary space, high specification finishes and outdoor room for play and entertaining. Buyers who rely on mains gas should note the property uses bulk LPG and the EPC rating is C — both worth checking during viewing and purchase enquiries.
3 bedroom detached bungalow for sale in Chapelfield Lane, Thurstonfield, CA5 — £450,000 • 3 bed • 2 bath • 1776 ft²
3 bedroom detached bungalow for sale in Chapelfield Lane, Thurstonfield, CA5 — £450,000 • 3 bed • 2 bath • 1776 ft²
3 bedroom detached bungalow for sale in Chapelfield Lane, Thurstonfield, CA5 — £450,000 • 3 bed • 2 bath • 1776 ft²
4 bedroom detached house for sale in Chapel Field, Thurstonfield, Carlisle, CA5 — £475,000 • 4 bed • 2 bath • 1795 ft²
2 bedroom detached bungalow for sale in 2 Bed Bungalow, Fenton, Hayton Parish, CA8 9JZ, CA8 — £395,000 • 2 bed • 1 bath • 1182 ft²
4 bedroom semi-detached house for sale in Manor Farm,
Crofton,
Thursby,
Carlisle,
CA5 6QB, CA5 — £475,000 • 4 bed • 3 bath • 1767 ft²






























































































