Chain-free 3-bed townhouse with garage, fast full-fibre broadband and convenient station access.
Three double bedrooms and two bathrooms, plus ensuite to master
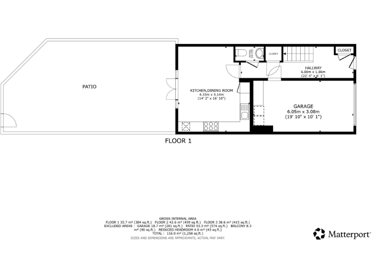
A modern three-bedroom townhouse on Fetlock Drive, built in 2018 and set within the popular Racecourse development. The house offers generous living space across three floors including a large kitchen/dining area, separate sitting room with balcony, integrated garage and driveway parking — all arranged around a low-maintenance rear garden with rear access. Fast FTTP broadband and excellent mobile signal make this a practical family home or commuter base.
Placed within walking distance of Newbury Racecourse station and local green spaces, the location is particularly convenient for rail and road links (A4, A34, M4). Local schools rated Good and a range of leisure amenities, pubs and countryside walks are nearby, adding to the day-to-day appeal for families and professionals.
The property is chain free and still benefits from around three years remaining on the NHBC cover. Notable running costs include an estate rent charge (shown at £158.67 for 2023/24) and a council tax band above average. The small plot and terraced position limit garden expansion potential, and buyers wanting extensive outdoor space should note the modest garden size.
Overall this is a modern, low-maintenance home with strong connectivity and flexible accommodation. It will suit buyers seeking a well-specified house for everyday family life or a commuter who wants good transport links and high-quality broadband.
4 bedroom town house for sale in Fetlock Drive, Newbury, RG14 — £539,950 • 4 bed • 3 bath • 1521 ft²
3 bedroom end of terrace house for sale in Fairstone, Newbury, RG14 — £535,000 • 3 bed • 3 bath • 1541 ft²
3 bedroom end of terrace house for sale in Forest Glade, Newbury, Berkshire, RG14 — £475,000 • 3 bed • 2 bath • 1199 ft²
3 bedroom semi-detached house for sale in Fetlock Drive, Newbury, RG14 — £435,000 • 3 bed • 3 bath • 1119 ft²
3 bedroom town house for sale in Fetlock Drive, Newbury, RG14 7WR, RG14 — £499,950 • 3 bed • 2 bath • 1516 ft²
3 bedroom town house for sale in Fairstone, Newbury, RG14 — £525,000 • 3 bed • 3 bath • 1499 ft²






































































