Bright open-plan apartment with large terrace next to Battersea Park.
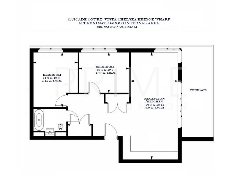
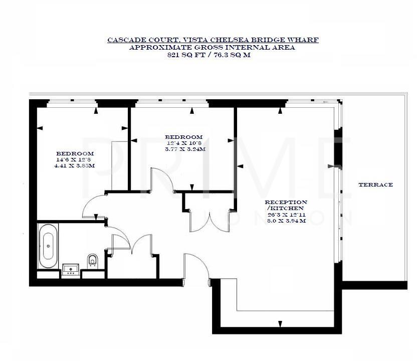
Chain free two-bedroom apartment, approx. 821 sq ft
Large private terrace with riverside/urban outlook
Open-plan reception/kitchen with floor-to-ceiling windows
24-hour concierge and residents' leisure facilities
Long lease remaining (990 years)
Service charge c. £6,500pa (above average)
Ground rent c. £700pa (expensive)
Community heating; single bathroom only
Set on the popular Vista Chelsea Bridge Wharf development, this modern two-bedroom apartment offers 821 sq ft of bright, open-plan living and a large private terrace ideal for outdoor entertaining. Full-height windows flood the principal reception with light while contemporary finishes and engineered timber flooring deliver a move-in-ready riverside home. The property is chain free and benefits from 24-hour concierge and on-site leisure facilities.
Practical features include a long lease (990 years), a single bathroom, and community heating via the development scheme. The location sits adjacent to Battersea Park and the Thames, with excellent transport links and local amenities for everyday convenience. Bedrooms are average-sized for the development; the reception is flexible for living and working from home.
Buyers should note ongoing costs: a service charge of £6,500pa (above average) and a ground rent of £700pa (expensive). Crime levels in the immediate area are above average. Overall this apartment suits purchasers seeking a ready-made, well-specified riverside flat with generous outdoor space, provided they accept higher communal running costs.
2 bedroom apartment for sale in Cascade Court, Vista, Chelsea Bridge Wharf, Battersea, SW11 — £995,000 • 2 bed • 1 bath • 820 ft²
1 bedroom apartment for sale in Cascade Court, 1 Sopwith Way, London, SW11 — £800,000 • 1 bed • 1 bath • 565 ft²
3 bedroom apartment for sale in Cascade Court, 1 Sopwith Way , SW11 — £1,720,000 • 3 bed • 2 bath • 1068 ft²
2 bedroom apartment for sale in Centurion Building, Chelsea Bridge Wharf, London, SW11 — £849,500 • 2 bed • 1 bath • 732 ft²
2 bedroom apartment for sale in Altissima House, Vista Chelsea Bridge Wharf, London, SW11 — £1,515,000 • 2 bed • 2 bath • 838 ft²
2 bedroom apartment for sale in Cascade Court, Vista, Battersea, SW11 — £910,000 • 2 bed • 2 bath • 861 ft²






































































