Ready-to-live family house with annex and large driveway.
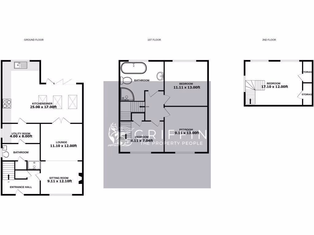
Three bedrooms plus converted loft room for extra space
A spacious three-bedroom semi-detached family home with an added loft room and generous driveway, set back from the road opposite a green. The house has been extended to provide an open-plan kitchen/diner, a through lounge and practical ground-floor utility and shower facilities — useful for busy family life. The rear garden is well maintained and includes an annex/outbuilding suitable for a home office, gym or storage.
The property is offered freehold and with no onward chain, so completion can be straightforward. Practical details include off-street parking for multiple vehicles, fast broadband availability and low local crime, making it convenient for work-from-home arrangements and family safety. The four-piece family bathroom and multiple storage solutions add to the day-to-day comfort.
Buyers should note the wider area classifications: locally described as a hampered neighbourhood and the surrounding area flagged as deprived. The house is an average overall size (about 1,225 sq ft) and has been extended multiple times; prospective purchasers should verify exact room sizes and any permitted development or planning records if required. Council tax is moderate and there is no flooding risk for the postcode.
This home suits growing families seeking extra space and flexibility — including a loft room and annex — in a well-connected part of Grays. It presents comfortable, ready-to-live-in accommodation with further potential for buyers who want to personalise or update finishes over time.
3 bedroom semi-detached house for sale in Whitmore Avenue, Stifford Clays, Grays, RM16 — £425,000 • 3 bed • 1 bath • 961 ft²
4 bedroom semi-detached house for sale in St. Chads Road, Tilbury, RM18 — £400,000 • 4 bed • 1 bath • 1390 ft²
3 bedroom semi-detached house for sale in Curling Lane, Badgers Dene, Grays, RM17 — £400,000 • 3 bed • 1 bath • 607 ft²
3 bedroom end of terrace house for sale in Hathaway Road, Grays, RM17 — £350,000 • 3 bed • 1 bath • 674 ft²
3 bedroom semi-detached house for sale in Russell Road, Grays, RM17 — £325,000 • 3 bed • 1 bath • 723 ft²
3 bedroom semi-detached house for sale in Second Avenue, West Thurrock, RM20 — £475,000 • 3 bed • 1 bath • 1170 ft²


























































































