Move-in-ready home with rare three-car parking in peaceful cul-de-sac.
- Newly refurbished interiors throughout, ready to move in
- Three designated off-street parking spaces included
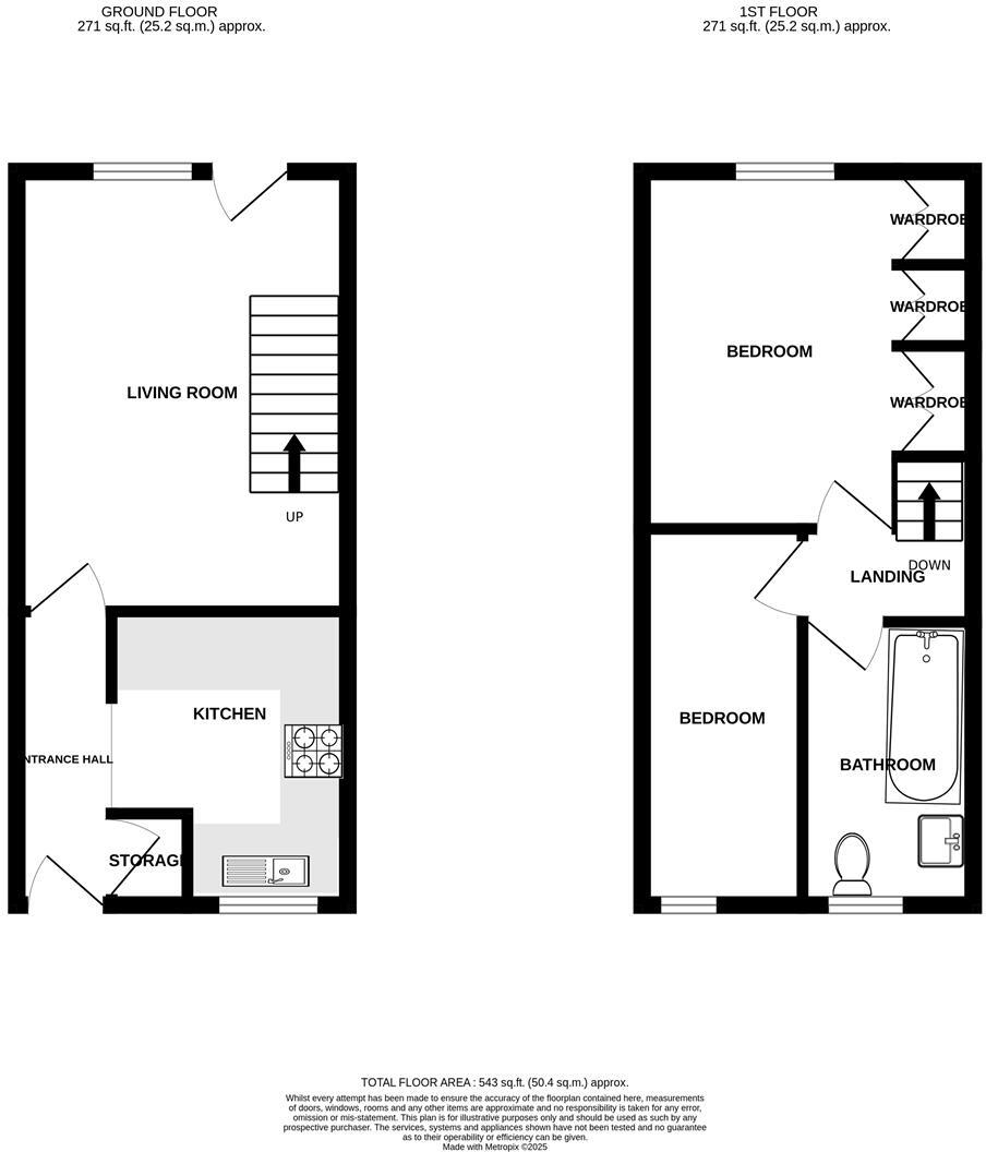
- Two double bedrooms; second bedroom is modest in size
- Private rear garden with new fencing; small plot
- Oak-effect herringbone flooring across the ground floor
- Freehold tenure and chain-free potential for faster sale
- Approximately 543 sq ft; compact overall footprint
- Constructed 1991–1995; some installations (dates) unspecified
This newly refurbished two-bedroom mid-terrace in Langdon Hills is a compact, move-in-ready home that suits first-time buyers or downsizers seeking low-maintenance suburban living. The ground floor has attractive oak-effect herringbone flooring, a modern kitchen with integrated appliances and a bright living/dining room that opens onto a private rear garden with new fencing.
Practicality is a strong selling point: the property is freehold, comes with three designated off-street parking spaces, and is offered chain-free potential. Local amenities and commuter links are convenient, with several primary schools within walking distance and Laindon, Basildon and West Horndon stations a short drive or walk away.
Buyers should note the property’s small overall footprint (approximately 543 sq ft) and a modest second bedroom—space is tight compared with larger family homes. The plot is small and the garden designed for low maintenance rather than large-scale entertaining. The house was constructed in the early 1990s and, while recently renovated internally, some fixed elements (windows, boiler install dates) are unspecified.
Overall this is a stylish, practical starter home offering modern finishes, rare multi-car parking and a peaceful cul-de-sac setting — a sensible choice for someone prioritising location, convenience and a ready-to-live-in home over large internal space.
2 bedroom terraced house for sale in Blackthorn Court, Basildon, SS16 — £335,000 • 2 bed • 1 bath • 662 ft²
2 bedroom terraced house for sale in Wendene, Basildon, SS16 — £275,000 • 2 bed • 1 bath
2 bedroom terraced house for sale in Forest Glade, Langdon Hills, Basildon, SS16 6SX, SS16 — £350,000 • 2 bed • 1 bath • 639 ft²
4 bedroom detached house for sale in Kenton Way, Langdon Hills, Basildon, SS16 — £500,000 • 4 bed • 2 bath • 946 ft²
3 bedroom end of terrace house for sale in Flint Close, Langdon Hills, Basildon, Essex, SS16 — £400,000 • 3 bed • 1 bath • 665 ft²
3 bedroom terraced house for sale in Warren Drive, Basildon, SS14 — £350,000 • 3 bed • 2 bath • 1249 ft²






































































