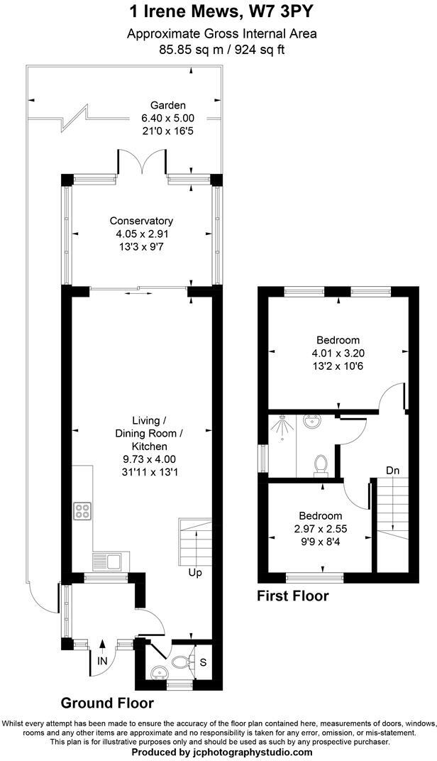
**Standout Features:**
- Modern 2-bedroom semi-detached home
- Open-plan living area with fitted kitchen
- Large conservatory leading to a secluded south-facing garden
- Ground-floor cloakroom for added convenience
- Excellent loft space with potential for extension (subject to consent)
- Off-street parking and chain-free sale
- Recent upstairs shower room, neutral decor throughout
**Potential Concerns:**
- Limited outdoor space can be viewed as small
- Local area experiences higher crime rates
Nestled in the tranquil Irene Mews of Hanwell, this modern semi-detached house offers a rare opportunity for families and first-time buyers alike. Spanning 924 sq ft, the home features an open-plan living area with abundant natural light, seamlessly connecting to a spacious conservatory that overlooks a beautifully secluded, south-facing garden—a true suntrap ideal for relaxation. With two well-sized double bedrooms and a recently updated shower room upstairs, this property offers comfortable living.
The loft space provides additional storage or the potential for future extension, making it a versatile choice for growing families. Conveniently located near both Hanwell and West Ealing stations, accessing the Elizabeth line and other transport links is effortless. Local amenities are just a short walk away, including shops, parks, and schools rated 'Good' and 'Outstanding.' While the area does face some crime concerns, this lovely home, presented chain-free, invites you to envision endless possibilities for comfortable living. Don’t miss out; opportunities like this in a peaceful yet accessible location are rare!
2 bedroom house for sale in Provender Mews, London, W7 — £785,000 • 2 bed • 2 bath • 1093 ft²
Semi-detached house for sale in Green Lane, Hanwell, W7 — £799,950 • 1 bed • 1 bath • 1051 ft²
4 bedroom house for sale in Green Lane, Hanwell, W7 — £799,950 • 4 bed • 2 bath • 1050 ft²
4 bedroom semi-detached house for sale in Greenford Avenue, Hanwell, London, W7 — £875,000 • 4 bed • 1 bath • 1346 ft²
2 bedroom semi-detached house for sale in Frederick Villas, Hanwell, W7 — £699,950 • 2 bed • 1 bath • 920 ft²
3 bedroom semi-detached house for sale in Hanwell, W7 — £625,000 • 3 bed • 1 bath • 1018 ft²


















































