**Standout Features:**
- Charming Victorian end-of-terrace cottage with character
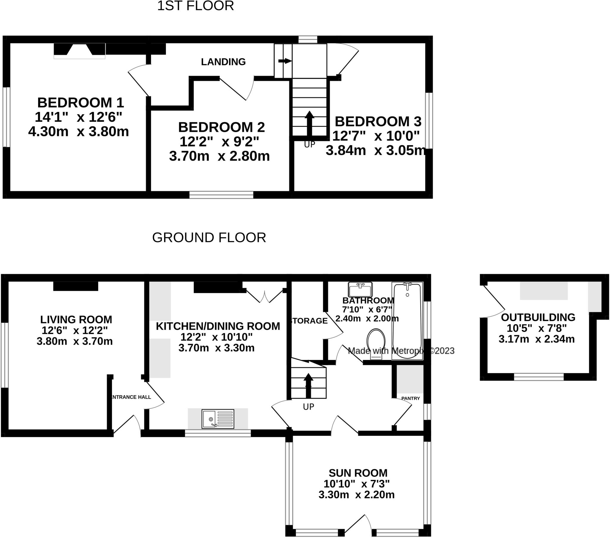
- Three spacious bedrooms and one bathroom
- Extensive outbuildings with lapsed planning permission
- Generous garden on a 0.21-acre plot with picturesque countryside views
- Off-street parking for multiple vehicles
- New roof and windows
- Serene rural location in a village setting
**Concise Summary:**
Discover the charm of this delightful Victorian end-of-terrace cottage, nestled in the tranquil village of Taunton, Somerset. With three spacious bedrooms and a well-appointed bathroom, this home invites comfort and relaxation. The heart of the home is a cozy kitchen area with rustic wooden features and ample storage. Outside, enjoy an expansive garden, perfect for gathers or quiet evenings, alongside extensive outbuildings that come with lapsed planning permission—offering a unique opportunity for expansion or additional utility.
Situated amidst picturesque countryside views, this property also provides off-road parking for multiple vehicles. While the area boasts average crime rates and excellent mobile signal, broadband availability is slow, appealing to those seeking a peaceful retreat over connectivity. This home presents an incredible opportunity for families or those looking to invest in a serene rural lifestyle. With council tax being affordable and a strong community presence, this property is a perfect fit for first-time buyers and retirees alike. Don’t miss your chance to own a piece of the Crown Estate and make it your dream home today!
3 bedroom detached house for sale in Corfe, Taunton, Somerset, TA3 — £650,000 • 3 bed • 3 bath • 1711 ft²
3 bedroom detached house for sale in Cheddon Fitzpaine, Taunton, Somerset, TA2 — £595,000 • 3 bed • 2 bath
3 bedroom terraced house for sale in Rectory Road, Norton Fitzwarren, Taunton, TA2 — £250,000 • 3 bed • 1 bath • 561 ft²
4 bedroom detached house for sale in Stoneyhead, Wrantage, 1.25 Acre, TA3 — £695,000 • 4 bed • 3 bath • 2032 ft²
2 bedroom semi-detached house for sale in Thurlbear, Taunton, TA3 — £475,000 • 2 bed • 1 bath • 1415 ft²
2 bedroom semi-detached house for sale in Culmhead, Taunton, TA3 — £450,000 • 2 bed • 1 bath • 3694 ft²






















































































































































