PO14 3LE - 3 bedroom detached bungalow for sale in Marks Tey Road, Stu…

View on Property Piper

3 bedroom detached bungalow for sale in Marks Tey Road, Stubbington, PO14

Summary - 17 MARKS TEY ROAD STUBBINGTON FAREHAM PO14 3LE

3 bed 2 bath Detached Bungalow

Generous single-storey home on a huge plot, minutes from Stubbington village and the beach.
Three double bedrooms, single-storey layout ideal for downsizing
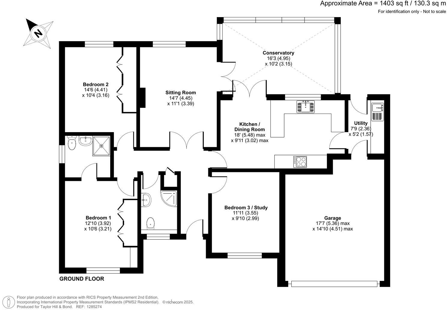
Built in the early 1990s and lovingly maintained, this three-bedroom detached bungalow offers single-storey living of about 1,403 sq ft on a notably large plot in a quiet cul-de-sac. The layout is traditional and practical, with a sitting room opening via double doors to a conservatory (added 2021) and a kitchen/dining room with an adjoining utility providing direct access to the double garage.

The garden is low-maintenance with lawn, mature shrub borders and a large terrace ideal for outdoor dining or relaxing after a coastal walk. Recent updates include refitted shower rooms (2021/22), a new composite front door (2021), driveway resurfacing (2020) and a fitted roller-shutter garage door (2025). Heating is by mains gas boiler and there is double glazing (installed before 2002).

This property is well placed for those seeking easy access to Stubbington village amenities, local schools and the shoreline — Hill Head beach and the Solent are a short drive away. Fareham and Southampton offer rail links and more comprehensive facilities for commuters and day trips.

Notable practical points: the EPC is D (62), council tax band is above average, and the property sits in an area with a medium flooding risk and higher local crime levels. These factors should be considered alongside the bungalow’s strong single-storey layout and oversized plot when assessing suitability for downsizing or retirement living.

Property Details

Image Descriptions

Floorplan Description

Rooms

Textual Property Features

Target Audience

AI Tags

Detected Visual Features

EPC Details

Nearby Schools

Nearest Bars And Restaurants

,,,,}

Nearest General Shops

,,}

Nearest Grocery shops

,,}

Nearest Supermarkets

,,}

Nearest Religious buildings

,,}

Nearest Medical buildings

,,,}

Nearest Airports

}

Nearest Leisure Facilities

,,,,}

Nearest Tourist attractions

,,}

Nearest Train stations

,,,,}

Nearest Bus stations and stops

,,,,}

Nearest Hotels

,,}

Tags

Local Market Stats

AirBnB Data

Similar Properties

Meta

High Res Images

Compatible Images

Low res Images

Thumbnails

Raw Images

High Res Floorplan Images

Compatible Floorplan Images

Low res Floorplan Images

FloorplanImages Thumbnail

Raw Floorplan Images