Compact Victorian flat near the beach, ideal for first-time buyers or investors.
Two bedrooms with high ceilings and sash windows, natural light
Petite balcony with partial sea views toward the seafront
Chain-free sale; long 998-year share of freehold lease
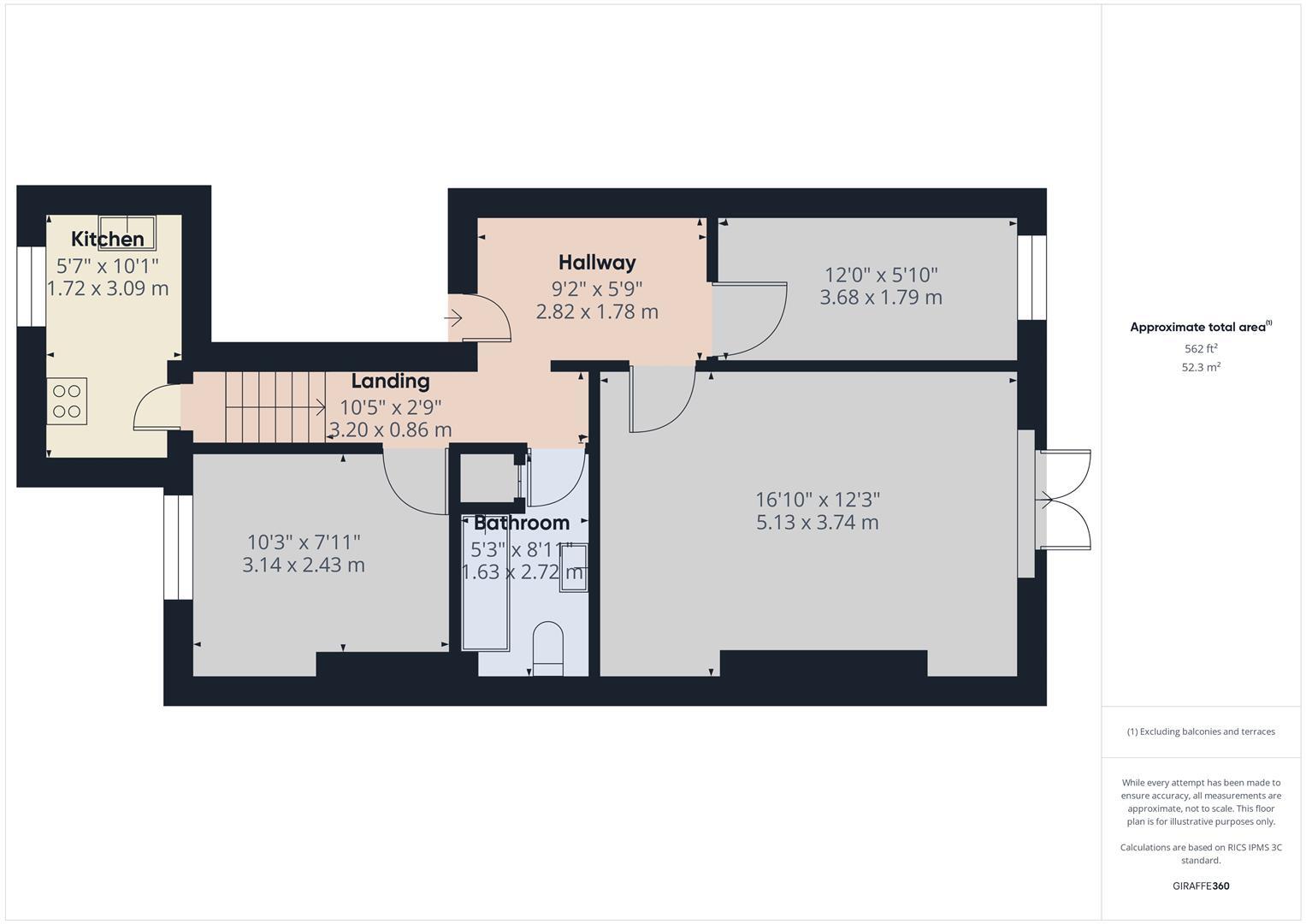
Small overall size: approx. 485 sq ft — compact living
Electric storage heaters; no central gas heating
Timber-frame walls likely without insulation — retrofit likely needed
Service charge £2,226.40 pa; additional building reserve contributions
Area notes: high crime classification and very deprived local area
Set on the second floor of an elegant Victorian terrace, this two-bedroom flat offers a compact coastal base with a petite balcony and partial sea views. The property benefits from high ceilings and sash windows that let in natural light, creating an airy feel despite its small overall footprint.
Practical positives include a long 998-year share of freehold lease, chain-free sale, and convenient central Kemp Town location minutes from the seafront, cafes, shops and regular bus routes to the station. Annual service charge is £2,226.40 and council tax is low, making running costs predictable.
Buyers should note this is a smaller period flat (approx. 485 sq ft) with electric storage heating and timber-frame walls likely without insulation, which could mean higher heating costs and future retrofit work. The surrounding area has a high crime classification and is described as very deprived, so safety and resale factors warrant consideration.
This property suits a first-time buyer seeking an affordable city-coast pied-à-terre or an investor wanting a let-close-to-sea opportunity. It offers immediate coastal living and clear renovation potential for improved thermal performance and modernisation.
1 bedroom flat for sale in Lower Rock Gardens, Brighton, BN2 — £250,000 • 1 bed • 1 bath • 344 ft²
1 bedroom apartment for sale in Northumberland Court, 62-64 Marine Parade, Brighton, BN2 — £270,000 • 1 bed • 1 bath • 635 ft²
2 bedroom flat for sale in Percival Terrace, Brighton, East Sussex, BN2 — £435,000 • 2 bed • 1 bath • 525 ft²
2 bedroom apartment for sale in Percival Terrace, Brighton, BN2 — £435,000 • 2 bed • 1 bath • 580 ft²
1 bedroom flat for sale in Bloomsbury Place, Brighton, East Sussex, BN2 — £210,000 • 1 bed • 1 bath • 395 ft²
2 bedroom flat for sale in New Steine, Brighton, East Sussex, BN2 — £375,000 • 2 bed • 1 bath • 637 ft²










































