Spacious family home with an approved build plot and strong development potential.
- Large detached house on over two‑thirds of an acre
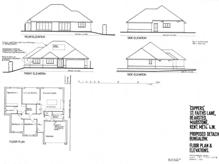
- Separate building plot with full planning permission (Maidstone 24/501083/FULL)
- Plot GDV quoted at approximately £750,000
- Four/five flexible bedrooms; principal bedroom with en‑suite
- Spacious reception rooms, eaves storage could be converted
- Interiors dated in places; requires modernisation to maximise value
- Double garage with storage above; potential for alternate uses
- Council Tax Band G — relatively expensive ongoing cost
Set on just over two-thirds of an acre on prestigious St. Faiths Lane, Foxhill House offers a large, flexible family layout and a rare development upside. The main house provides four/five bedrooms, substantial reception rooms and generous eaves storage that could be converted subject to consents. The mature rear garden, paved seating area and double garage suit family life and garaging/ancillary conversion.
A key value driver is the separate building plot within the grounds which has full planning permission (Maidstone 24/501083/FULL) for a three-bedroom detached house and provisional infrastructure agreements for service connections. The vendor cites an approximate GDV for that plot of £750,000 — a material uplift for owner-occupiers wanting multigenerational living or buyers seeking a development return.
The house offers scope for modernisation and expansion: interiors are spacious but some areas include dated decor and will benefit from updating to realise full value. Practical details to note are the freehold tenure, mains gas underfloor heating, recent construction references and a Council Tax Band G, which is relatively expensive. Broadband and mobile signal are strong and there is no flood risk.
This property suits a family seeking space and garden privacy on a desirable road, or an investor/developer targeting immediate planning consent and a significant GDV. Viewings will be most useful for buyers comfortable managing refurbishment or development activity to unlock the site’s full potential.
4 bedroom detached house for sale in Ashford Road, Bearsted, Maidstone, ME14 — £800,000 • 4 bed • 2 bath • 1906 ft²
5 bedroom detached house for sale in Ashford Road, Bearsted, Maidstone, ME14 — £875,000 • 5 bed • 3 bath • 2590 ft²
5 bedroom detached house for sale in Discovery Road, Bearsted, Maidstone, ME15 — £800,000 • 5 bed • 2 bath • 2038 ft²
4 bedroom detached house for sale in Manor Rise, Bearsted, Maidstone, ME14 — £800,000 • 4 bed • 2 bath • 1740 ft²
5 bedroom detached house for sale in Edelin Road, Bearsted, ME14 — £760,000 • 5 bed • 3 bath • 2000 ft²
5 bedroom detached house for sale in The Orchard, Bearsted, Maidstone, Kent, ME14 — £975,000 • 5 bed • 3 bath • 2688 ft²






























































































































