Chain-free Victorian cottage with long garden and excellent transport links.
Victorian two-bedroom end-terrace, freehold and chain free
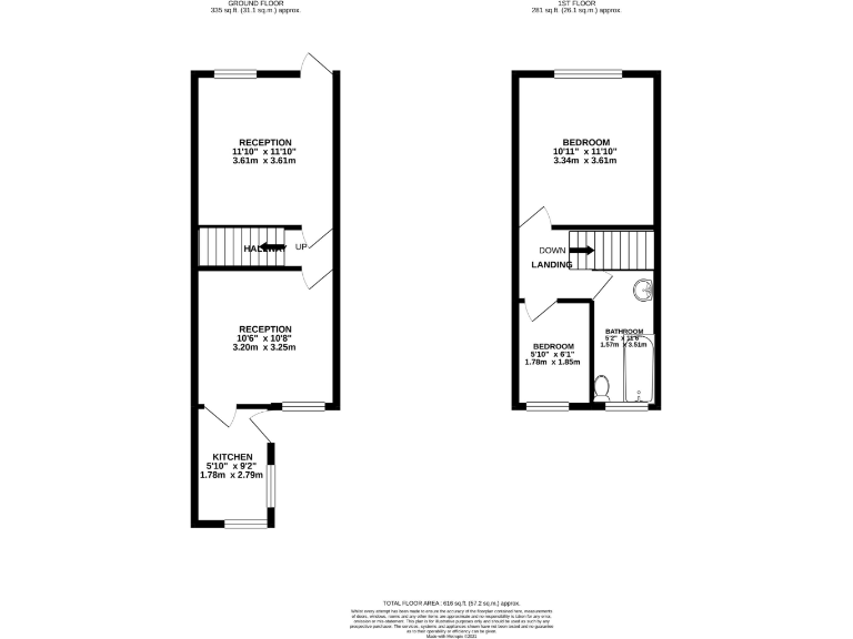
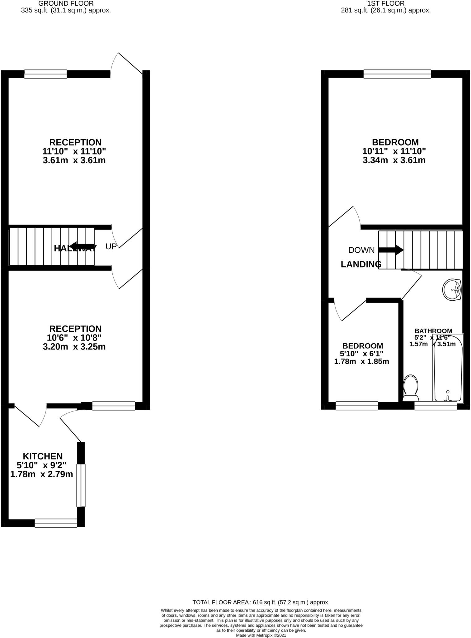
A Victorian two-bedroom end-terrace offering a straightforward, chain-free entry to Croydon property ownership. The house keeps many period proportions across two reception rooms and two good-sized bedrooms, suited to first-time buyers or young families who value proximity to transport links.
Practical positives include gas central heating, double glazing throughout, fast broadband and excellent mobile signal. The property sits within walking distance of Selhurst and Norwood Junction stations with easy access to East and West Croydon and frequent services into Central and North London.
The garden is long and private with a large brick shed, providing useful outdoor space and storage. Internally the home needs some modernising — there is visible wear in the dining room and the property would benefit from improved wall insulation and cosmetic updating to maximise its value.
Location factors: the area suits commuters and families with several local primary and secondary schools rated Good or Outstanding nearby. Be aware the neighbourhood records above-average crime and the wider area shows relative deprivation; buyers should weigh transport convenience against these local challenges.
2 bedroom semi-detached house for sale in Holmesdale Road, Croydon, CR0 — £300,000 • 2 bed • 1 bath • 672 ft²
2 bedroom semi-detached house for sale in Northcote Road, Croydon, CR0 — £425,000 • 2 bed • 1 bath • 984 ft²
2 bedroom terraced house for sale in Boulogne Road, Croydon, CR0 — £325,000 • 2 bed • 1 bath • 633 ft²
2 bedroom semi-detached house for sale in Holmesdale Road, Croydon, CR0 — £300,000 • 2 bed • 1 bath • 696 ft²
2 bedroom end of terrace house for sale in Cuthbert Road, Croydon, CR0 — £325,000 • 2 bed • 1 bath • 810 ft²
2 bedroom end of terrace house for sale in Sutherland Road, Croydon, CR0 — £350,000 • 2 bed • 1 bath • 767 ft²






























































