Ready-to-move apartment with parking close to shops and transport links.
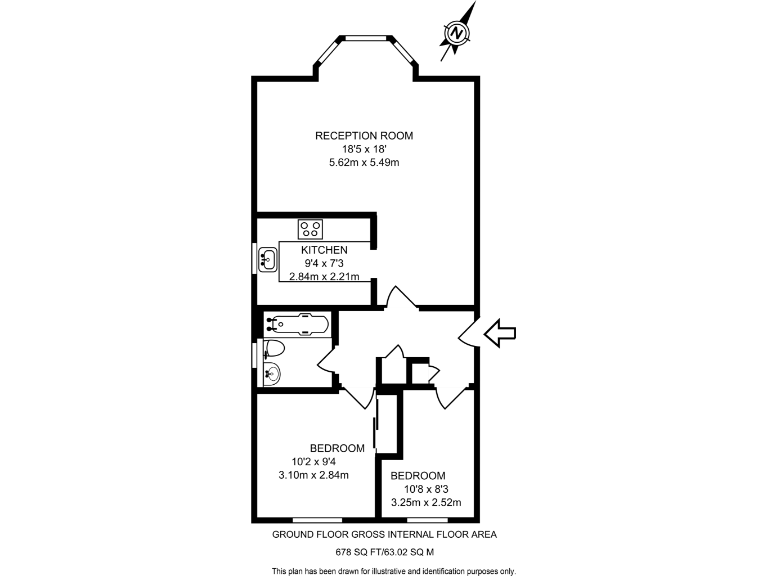
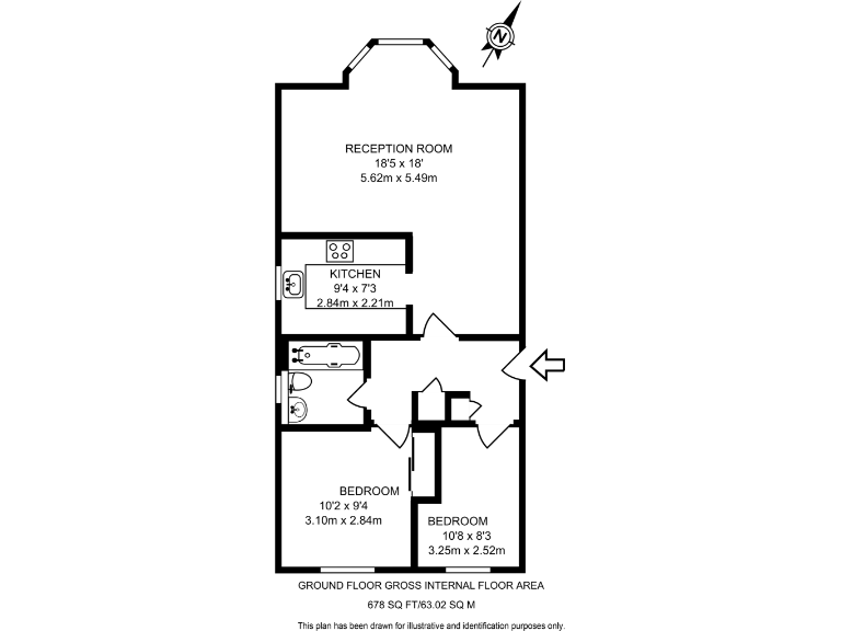
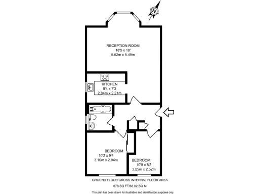
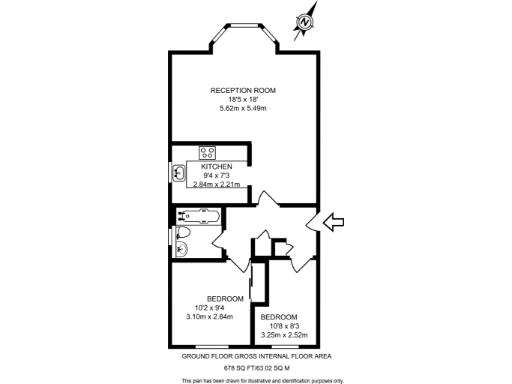
18' open-plan reception creates living and dining space
Light and well-proportioned, this 2-bedroom apartment sits beside the River Thames in central Surbiton, a short walk from shops, cafés and Kingston town centre. An 18' open-plan reception creates a flexible living and dining space, complemented by a smart kitchen and built-in wardrobe to the main bedroom. The property comes with off-street resident parking and is offered with no onward chain, making it suitable for a quick move.
Practical details work in its favour for first-time buyers: the flat is an average-sized 678 sq ft, benefits from double glazing and fast local broadband, and is near several highly regarded schools. Transport links are strong — Surbiton station is within walking distance with regular trains to London Waterloo. The riverside setting and nearby amenities add everyday convenience and lifestyle appeal.
There are a few matters to note before viewing. Heating is by electric room heaters rather than a communal gas system, which can be less efficient and affect running costs. There is a single bathroom and some ambiguity in the paperwork: the advert refers to a share of freehold while the listed tenure is leasehold — legal title should be clarified. The building age and construction details appear mixed in the records and images, so prospective buyers should verify structural and historical information.
Overall, this apartment suits a first-time buyer seeking an attractive, ready-to-live-in home in a highly convenient riverside location, with potential to personalise. Budget for ongoing running costs and check tenure/title details during conveyancing.
2 bedroom apartment for sale in Portsmouth Road, Surbiton, KT6 — £599,950 • 2 bed • 1 bath • 973 ft²
2 bedroom flat for sale in Portsmouth Road, Long Ditton, Surbiton, KT6 — £430,000 • 2 bed • 2 bath • 669 ft²
2 bedroom flat for sale in Catherine Road, Surbiton, KT6 — £650,000 • 2 bed • 1 bath • 809 ft²
2 bedroom apartment for sale in Uxbridge Road, Kingston upon Thames, KT1 — £575,000 • 2 bed • 1 bath • 904 ft²
2 bedroom flat for sale in Portsmouth Road, Surbiton, KT6 — £465,000 • 2 bed • 1 bath • 1019 ft²
2 bedroom flat for sale in Portsmouth Road, Surbiton, KT6 — £475,000 • 2 bed • 2 bath • 718 ft²










































































