CH62 8BS - 3 bedroom semidetached house for sale in Adaston Avenue, Ea…

View on Property Piper

3 bedroom semi-detached house for sale in Adaston Avenue, Eastham, CH62

Summary - 28 ADASTON AVENUE WIRRAL CH62 8BS

3 bed 1 bath Semi-Detached

**Standout Features:**
- Newly renovated semi-detached home
- 3 spacious bedrooms and 1 stylish bathroom
- Modern open-plan living kitchen with vaulted ceiling and bi-fold doors
- Landscaped garden with composite decked area
- Attached garage with separate office space
- Ideal for family living with proximity to good local schools
- Fast broadband and affordable council tax

**Concerns:**
- Located in an area classified as "deprived"
- Cavity walls may lack insulation

---

This stunning, newly renovated semi-detached home offers an exquisite blend of modern elegance and family-friendly space, perfect for those seeking comfort and style. The highlight is the expansive open-plan living area, adorned with a stylish kitchen featuring an island, breakfast bar, and a wine fridge, all leading through bi-fold doors to a beautifully landscaped garden, ideal for entertaining.

Upstairs, discover three well-appointed bedrooms, including a master suite equipped with air-conditioning, ensuring year-round comfort. The thoughtfully designed bathroom showcases contemporary fittings, amplifying the home's quality. A rare bonus is the garage converted into an office space, perfect for remote work or leisure.

Located in a vibrant community with good local schools nearby, this property is a wonderful opportunity for families looking for a contemporary home in a convenient area. With fast broadband and ample off-road parking, this residence ticks all the right boxes for modern family living. Don’t miss out—properties like this don’t stay on the market for long!

Property Details

Brochure Descriptions

Image Descriptions

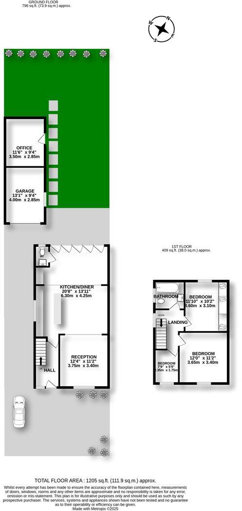
Floorplan Description

Rooms

Textual Property Features

Detected Visual Features

EPC Details

Nearby Schools

Nearest Bars And Restaurants

,,,,}

Nearest General Shops

,,}

Nearest Grocery shops

,,}

Nearest Supermarkets

,,}

Nearest Religious buildings

,,}

Nearest Medical buildings

,,,}

Nearest Airports

}

Nearest Leisure Facilities

,,,,}

Nearest Tourist attractions

,,}

Nearest Train stations

,,,,}

Nearest Bus stations and stops

,,,,}

Nearest Hotels

,,}

Tags

Local Market Stats

Similar Properties

Meta

High Res Images

Compatible Images

Low res Images

Thumbnails

Raw Images

High Res Floorplan Images

Compatible Floorplan Images

Low res Floorplan Images

FloorplanImages Thumbnail

Raw Floorplan Images