**Standout Features:**
- Charming Tudor Revival architecture
- Detached family home with large living spaces and potential for customization
- Elevated position offering delightful views of the surrounding area
- Convenient off-road parking to the rear
- Expansive wrap-around garden perfect for families and outdoor entertaining
- Access to local amenities, including schools and recreational areas
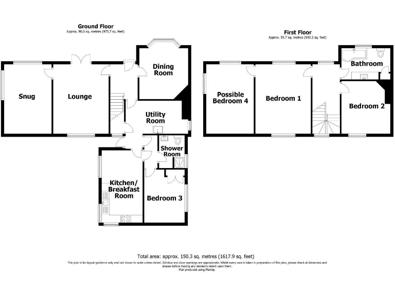
This delightful detached family home, situated in the tranquil setting of Clent, boasts exceptional potential for both family living and future renovations. With three spacious reception rooms, a well-appointed kitchen, convenient utility room, and a ground-floor bedroom and shower room, this property is designed for comfort and versatility. The first floor features two generous bedrooms and a potential fourth bedroom that can also serve as a study, alongside a family bathroom.
Although there are some concerns regarding the non-traditional construction of the extension and the potential lack of insulation in older parts of the home, the solid brick structure and charming period features provide a great foundation for future improvements. The expansive wrap-around garden offers ample outdoor space, perfect for children and entertaining guests. Located within reach of esteemed schools and scenic National Trust vistas, this home harmonizes rural serenity with accessibility to nearby amenities. Don’t miss the chance to explore this welcoming family home with great features and untapped potential!
3 bedroom terraced house for sale in Kings Meadow, Clent, DY9 — £395,000 • 3 bed • 1 bath • 901 ft²
3 bedroom detached house for sale in Hagley Park, Clent, DY9 — £875,000 • 3 bed • 2 bath • 1610 ft²
3 bedroom detached bungalow for sale in Belbroughton Road, Clent, DY9 — £650,000 • 3 bed • 2 bath • 1271 ft²
3 bedroom detached house for sale in Clent Hill Drive, Rowley Regis, B65 — £300,000 • 3 bed • 1 bath • 1218 ft²
3 bedroom semi-detached house for sale in Meadowcroft, Hagley, DY9 — £425,000 • 3 bed • 1 bath • 894 ft²
4 bedroom detached house for sale in Mount Lane, Clent, Stourbridge, DY9 — £650,000 • 4 bed • 3 bath • 1203 ft²


























































































































