Ready-to-move-in flat close to station and shops.
Allocated off-street parking space included
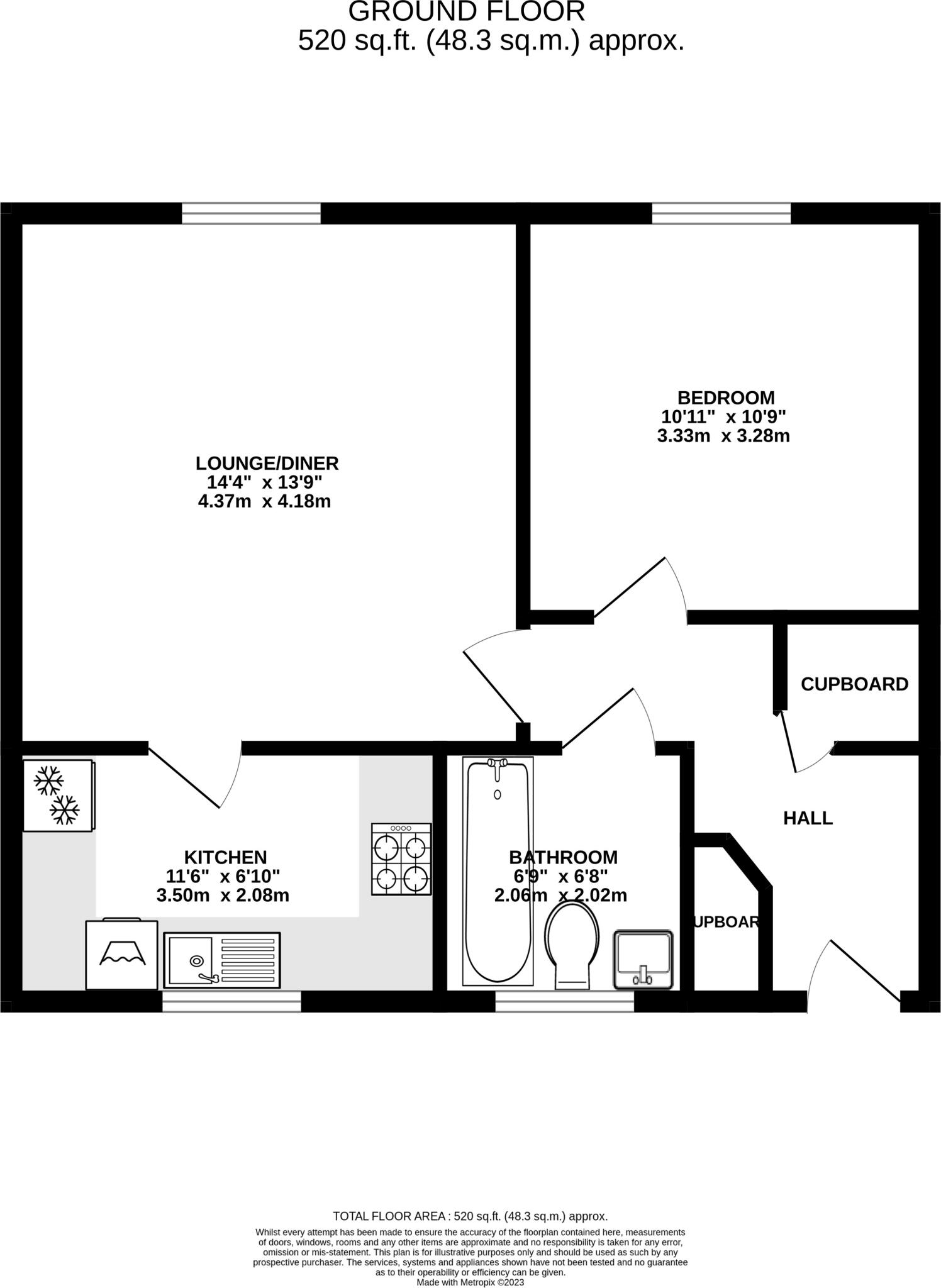
Set on the first floor of a gated modern development, this one-bedroom apartment offers a practical, low-maintenance home or rental in a convenient town location. The flat includes a fitted kitchen with appliances, a bright lounge/diner, double glazing and gas central heating — ready to move into with no onward chain.
Practical perks include a secure entry intercom system and one allocated off-street parking space, plus an EPC rating of C and 107 years remaining on the lease. At around 520 sq ft, the layout suits a single buyer or couple seeking a compact, manageable property close to the station, shops and A249/M2 links.
Important considerations are factual: the property is leasehold, located in an area recorded with very high crime levels, and has a medium flood risk. Council Tax sits in Band A (very cheap), and the apartment was constructed post-2007 with modern double glazing and mains gas central heating — which should limit immediate major works but buyers should factor in ongoing service/management charges typical of gated developments.
Overall this apartment is geared toward first-time buyers wanting transport and town-centre convenience or investors looking for an easy-to-manage let. Viewing is recommended to judge the size and communal environment for your needs.
1 bedroom flat for sale in Ocean Drive, Gillingham, ME7 — £150,000 • 1 bed • 1 bath • 330 ft²
1 bedroom flat for sale in Church Street, Sittingbourne, ME10 — £165,000 • 1 bed • 1 bath • 517 ft²
1 bedroom apartment for sale in Ashford Road, Maidstone, ME14 — £145,000 • 1 bed • 1 bath • 527 ft²
1 bedroom apartment for sale in Peony Crescent, Sittingbourne, ME10 — £170,000 • 1 bed • 1 bath • 502 ft²
2 bedroom apartment for sale in Old School Place, Union Street, Maidstone, Kent, ME14 — £210,000 • 2 bed • 2 bath • 744 ft²
2 bedroom apartment for sale in Lywood Drive, Sittingbourne, ME10 — £200,000 • 2 bed • 1 bath • 472 ft²


















































