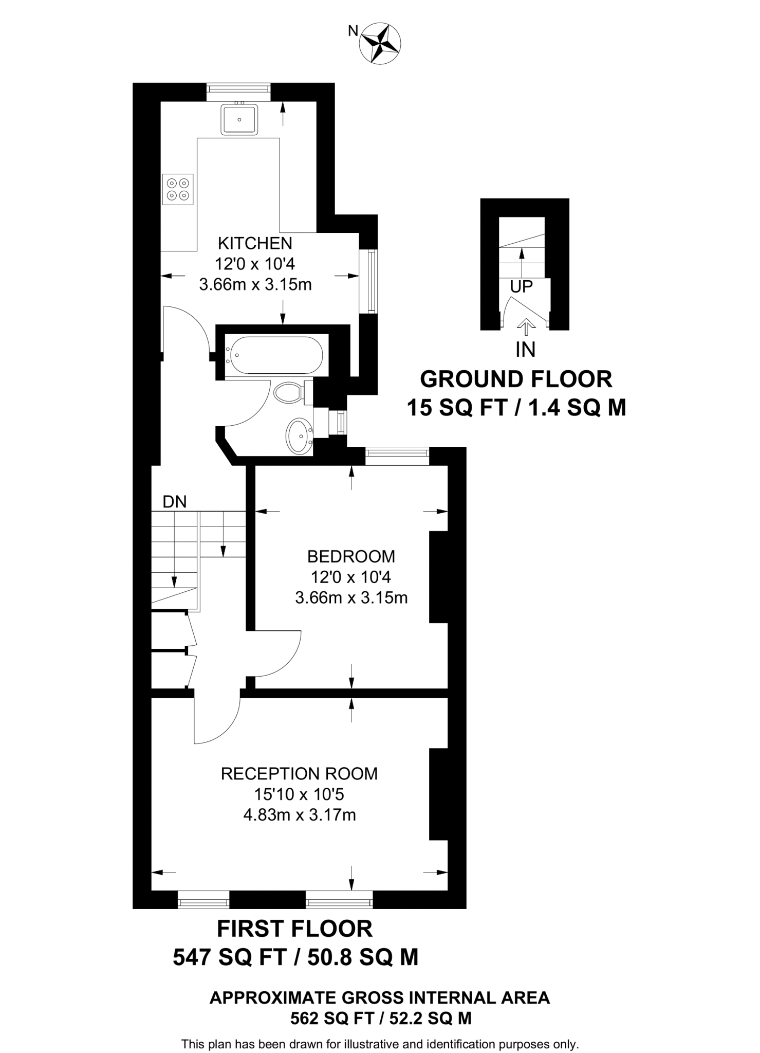
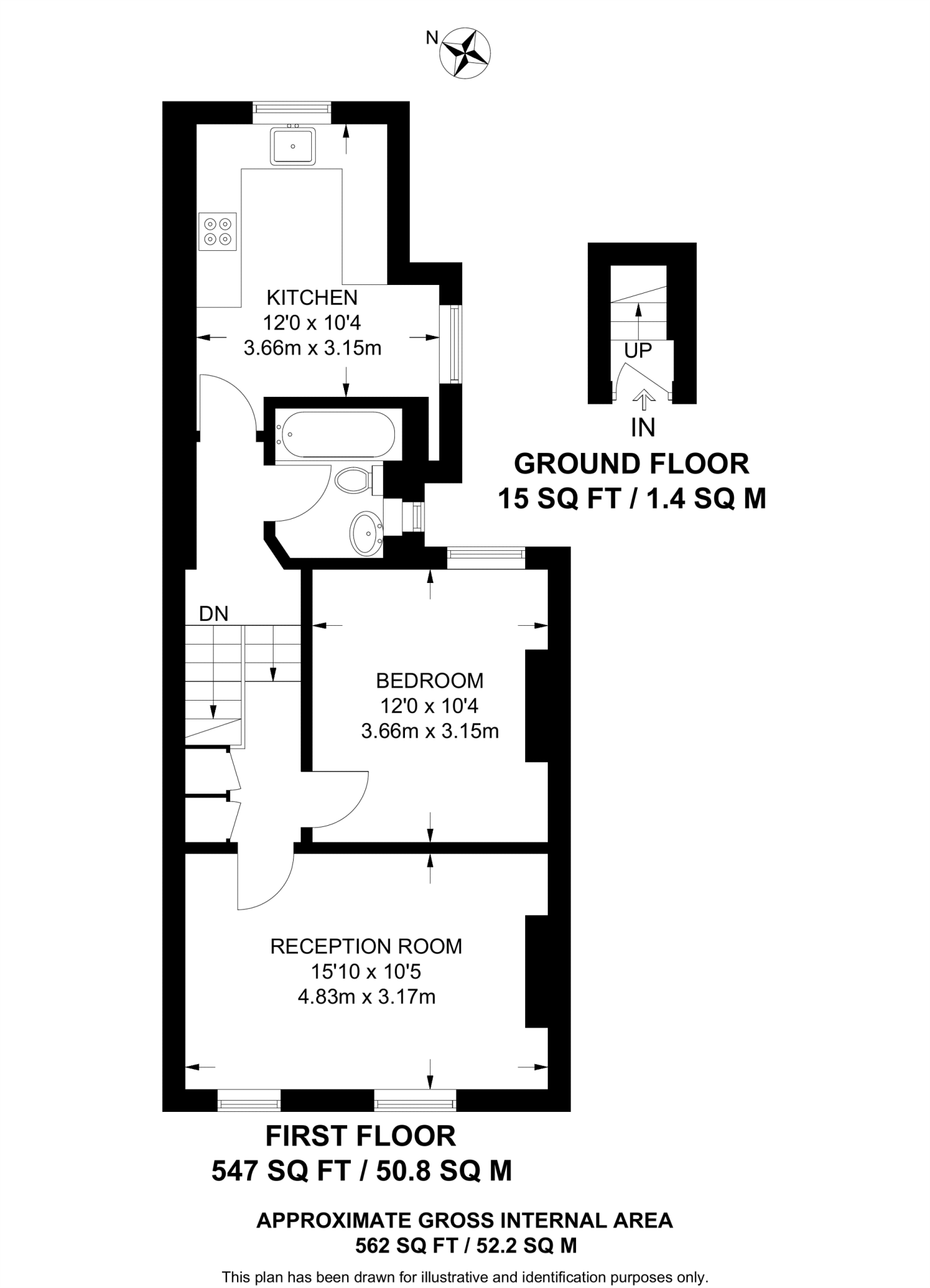
Spacious reception and dining kitchen near Lavender Hill shops and transport links.
Bright large reception room with big windows and natural light
Separate integrated kitchen with dining space, practical layout
Genuine double bedroom and sleek bathroom suite
Approximately 562 sq ft — comfortable one-bedroom proportions
104 years remaining on lease; leasehold tenure
Service charge about £1,300 and ground rent about £300 per year
Solid brick walls likely without insulation — potential energy upgrade needed
Area shows deprivation pockets and average local crime statistics
Set on the first floor of a period mid-terrace in Battersea, this well-sized one-bedroom maisonette delivers bright, practical living across about 562 sq ft. The large reception room and separate integrated kitchen with space to dine suit a professional couple or first-time buyer seeking straightforward, move-in accommodation close to Lavender Hill amenities and transport links.
The double bedroom is a genuine double and the bathroom has a sleek modern suite. Practical benefits include double glazing, mains gas central heating with a boiler and radiators, fast broadband and excellent mobile signal — useful for home working. The 104-year lease offers long-term security for a leasehold purchase.
Buyers should note a modest service charge and ground rent (approx. £1,300 and £300 pa respectively). The building’s solid brick construction likely lacks cavity insulation and may need retrofit improvements for energy efficiency. The wider area shows pockets of deprivation and average crime levels, though local schools and amenities are strong.
Overall this property presents a comfortable, well-located starter home with clear potential to increase energy performance and personalise finishes. It’s best suited to buyers prioritising location, outdoor amenities and transport over a fully renovated, low-running-cost home.
1 bedroom flat for sale in Battersea Bridge Road, Battersea, London, SW11 — £390,000 • 1 bed • 1 bath • 499 ft²
1 bedroom maisonette for sale in Maysoule Road, London, SW11 — £350,000 • 1 bed • 1 bath • 566 ft²
1 bedroom flat for sale in Stevenson House, Battersea, London, SW11 — £400,000 • 1 bed • 1 bath • 405 ft²
1 bedroom flat for sale in Petworth Street, Battersea, SW11 — £475,000 • 1 bed • 1 bath • 512 ft²
3 bedroom flat for sale in Parkham Street, Battersea, SW11 — £500,000 • 3 bed • 1 bath • 893 ft²
1 bedroom flat for sale in Alfreda Street, Battersea Park, Battersea, London, SW11 — £275,000 • 1 bed • 1 bath • 535 ft²






























































