Generous rooms and period charm moments from Gladstone Park and local schools.
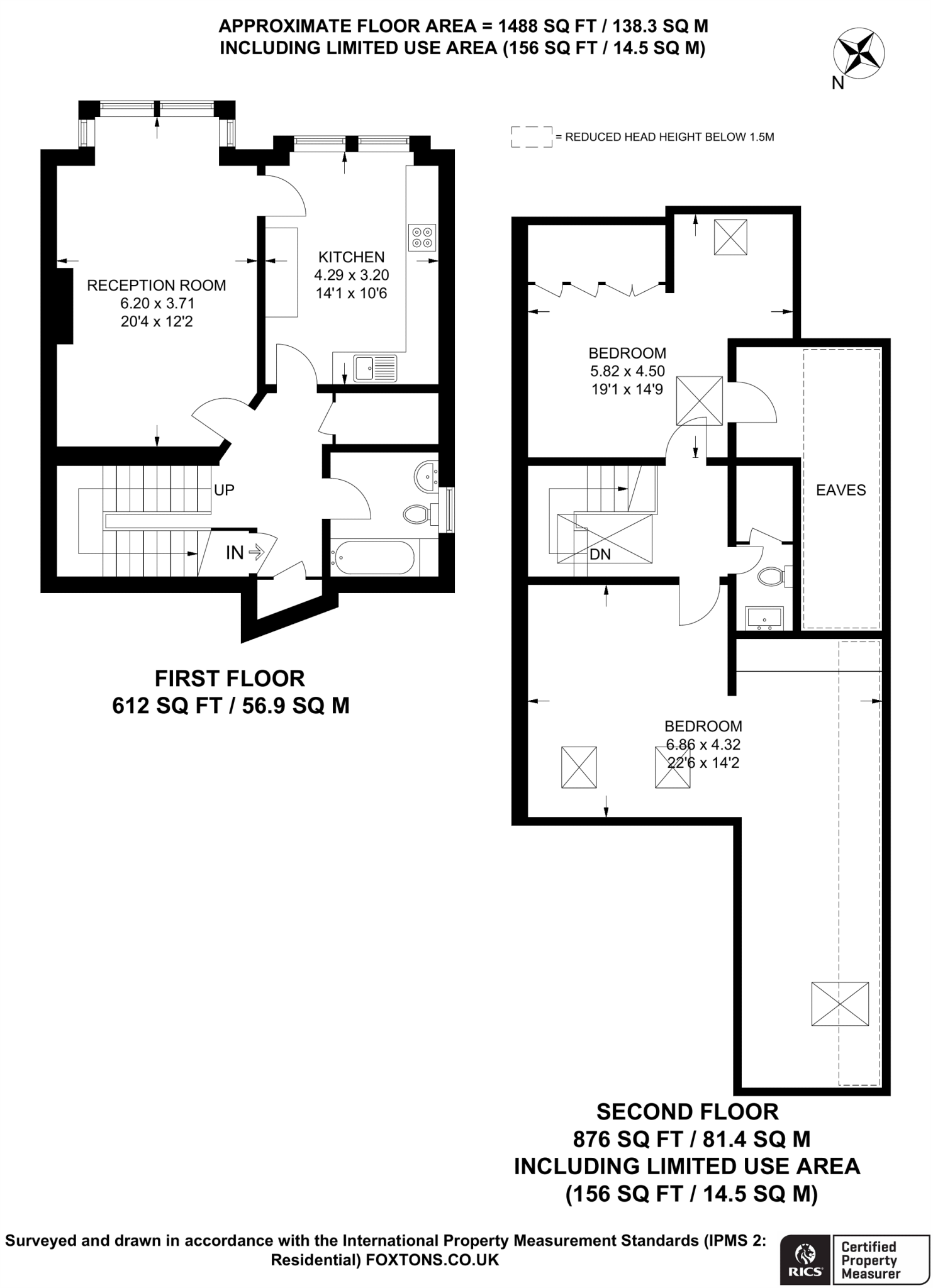
- Very large duplex flat — approx. 1,488 sq ft
- High ceilings and large bay-window reception room
- Eat-in modern kitchen with plenty of natural light
- Two double bedrooms, both with fitted wardrobes
- Landing space ideal for home office or study
- Share of freehold tenure
- Single bathroom only; may be limiting for families
- Solid brick walls assumed uninsulated; energy upgrades advised
Set over two floors, this unusually large duplex flat (approx. 1,488 sq ft) combines period character with modern living. High ceilings, a large bay window and a bright reception room give a sense of space, while the eat-in kitchen and two double bedrooms with fitted wardrobes suit everyday family life.
The split-level layout includes a landing well suited to a home office or study area, adding flexibility for remote working. The property benefits from double glazing, mains gas central heating and share of freehold tenure, and broadband speeds and mobile signal are strong — helpful for busy households and commuters.
Location is a genuine strength: a desirable residential road in Willesden Green, close to Walm Lane, Willesden High Road and Gladstone Park. Several well-rated primary and secondary schools are nearby, making the flat practical for families.
Buyers should note there is a single bathroom and the building’s solid-brick walls are assumed uninsulated, so buyers may wish to budget for energy-efficiency improvements. Constructed between 1930–1949, the flat retains period features but may benefit from targeted updating depending on buyer taste.
Overall this duplex offers rare internal space for the area and flexible accommodation in a sought-after location — a strong option for families or buyers seeking roomy, characterful living with good transport and local amenities.
3 bedroom maisonette for sale in Walm Lane, Willesden Green, London, NW2 — £625,000 • 3 bed • 2 bath • 1045 ft²
4 bedroom flat for sale in Blenheim Gardens, Willesden Green, London, NW2 — £600,000 • 4 bed • 1 bath • 1209 ft²
2 bedroom maisonette for sale in Chapter Road, Willesden Green, London, NW2 — £435,000 • 2 bed • 1 bath • 701 ft²
2 bedroom flat for sale in Willesden Lane, Brondesbury Park, London, NW6 — £455,000 • 2 bed • 2 bath • 887 ft²
2 bedroom flat for sale in Chichele Road, Willesden Green, NW2 — £500,000 • 2 bed • 1 bath • 750 ft²
2 bedroom flat for sale in Chandos Road, London, NW2 — £500,000 • 2 bed • 1 bath • 892 ft²


















































































































































































































































































































































