Full planning for three limestone barn homes on a large, rural plot near Oundle..
- Full planning permission for three dwellings (ref 17/01325/FUL)
- Lawful commencement certificate (NE/21/01091/LDE) secures consent in perpetuity
- Traditional limestone barns with high ceilings and large internal spaces
- Huge plot in a quiet rural hamlet with gardens and courtyard parking
- Purchaser must remove and dispose of steel portal barn and base
- No mains sewerage; buyer to provide drainage solution
- Restrictive covenants limit use to three private dwellings and require fencing
- Services (electricity, water) available at roadside; confirm availability
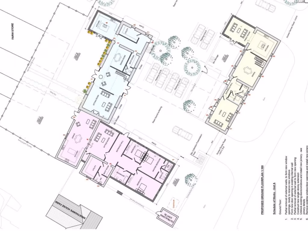
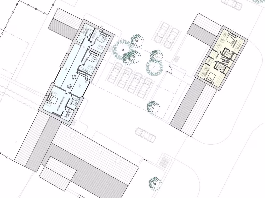
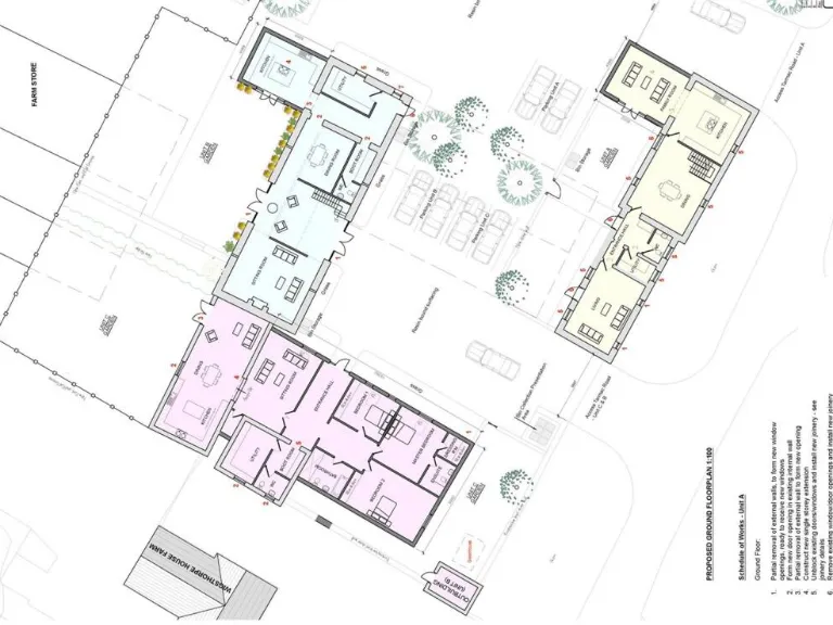
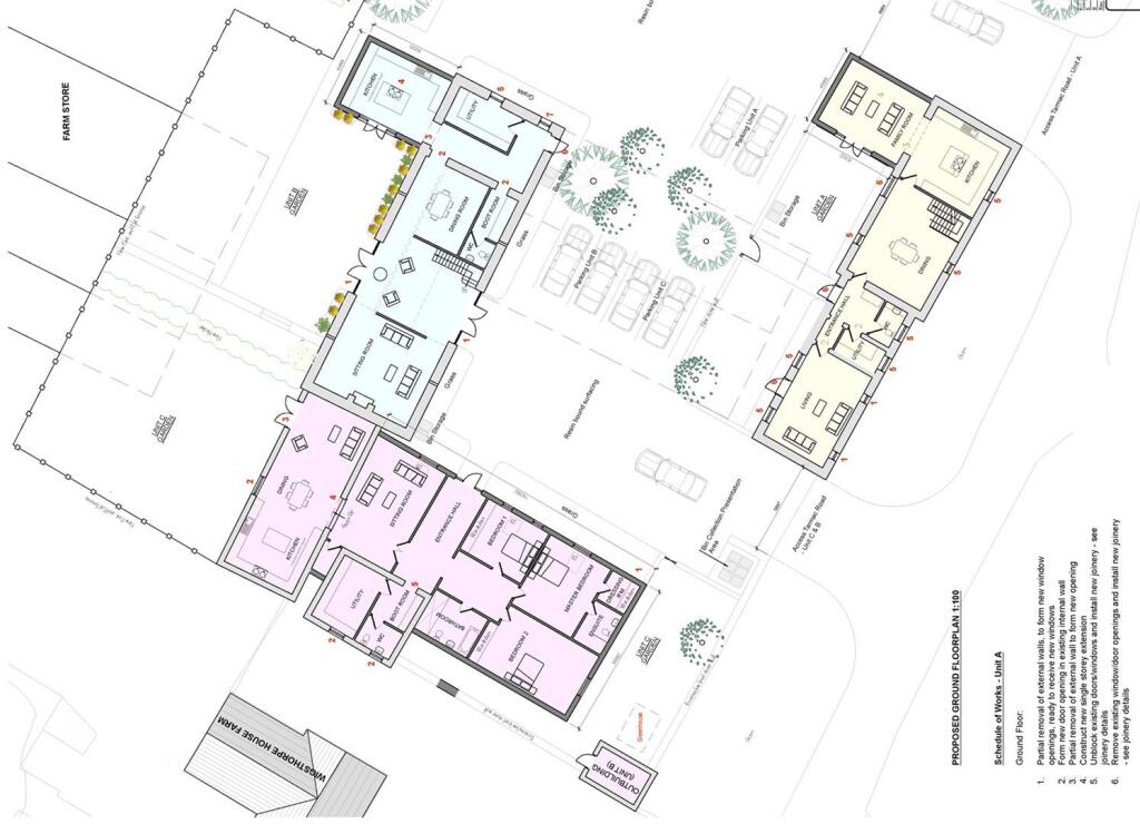
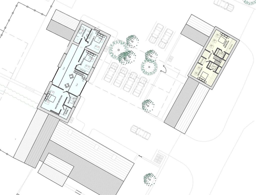
An attractive development plot in the rural hamlet of Wigsthorpe with full planning permission and a lawful commencement certificate. The site comprises three traditional limestone barns with slate roofs and consent for conversion into three private dwellings, each with private gardens and off-street parking. The permission (East Northamptonshire Council ref 17/01325/FUL, lawfully commenced NE/21/01091/LDE) secures the scheme in perpetuity for a buyer who wants a ready-to-deliver barn conversion project.
The barns sit within a large farmyard plot offering scope for landscaping and courtyard parking. Services (electricity and water) are at the roadside; there is no mains sewerage in the village, so purchasers must plan drainage solutions. The steel portal barn identified on the plan must be removed by the purchaser and disposed of at the purchaser’s cost; that building and its concrete base are not transferred with the sale.
Legal covenants restrict future development to the approved three dwellings, require specified boundary fencing within six weeks of completion, and obligate the purchaser to landscape the former steel-barn footprint. VAT may be payable on the purchase price; purchasers should also confirm availability of services and satisfy themselves on all technical matters prior to offer.
Well placed for access to Oundle, Thrapston and mainline stations (Peterborough, Kettering, Huntingdon), the site will appeal to developers or builder-owners targeting high-quality countryside conversions near strong independent and state schooling. The setting in an established farming community and low local crime rate add appeal, but the project requires budget for demolition, drainage and contractor works before completion.
5 bedroom house for sale in Lower Farm Barn, Lower Benefield, Nr Oundle, Northamptonshire, PE8 — £850,000 • 5 bed • 2 bath • 2708 ft²
4 bedroom detached house for sale in Lindsey Close, Woodnewton, Peterborough, PE8 — £650,000 • 4 bed • 2 bath • 2358 ft²
4 bedroom detached house for sale in Sheep Street, Buckworth, Huntingdon, Cambridgeshire, PE28 — £375,000 • 4 bed • 3 bath
Land for sale in Ashton Road, Oundle, Peterborough, Northamptonshire, PE8 — £60,000 • 1 bed • 1 bath
Land for sale in Harrold Road, Bozeat, Wellingborough, NN29 — £500,000 • 1 bed • 1 bath • 3500 ft²
Plot for sale in Barn Conversion, Scaldwell Road, Brixworth, Northamptonshire, NN6 — £285,000 • 1 bed • 1 bath • 2428 ft²






































