Large family home with west garden and clear refurbishment potential.
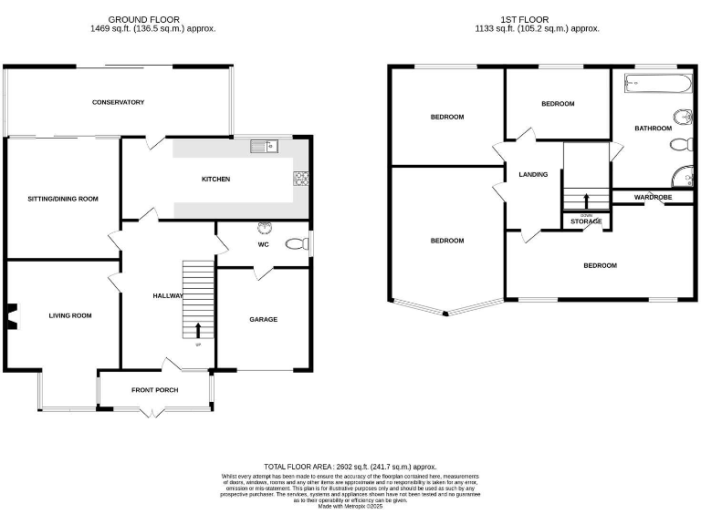
Four bedrooms with generous reception rooms and conservatory
West-facing rear garden providing afternoon and evening sun
Integral garage plus off-street parking for multiple vehicles
Large total floor area (approx. 2602 sq ft) with versatile layout
Requires renovation and modernisation throughout (buyer to budget)
Solid brick walls; assumed no cavity insulation needs upgrading
Council tax above average; energy performance likely to need improvement
Close to A127, C2C rail and local shops; low local crime
This substantial four-bedroom semi-detached house on Walker Drive offers genuine family space and clear scope to add value. Two large reception rooms, a long conservatory and a west-facing rear garden create comfortable day-to-day living and entertaining areas. Off-street parking plus an integral garage add practical convenience for families.
The property is solid-brick and retains period character—lead windows, a traditional fireplace and wood flooring are noted—yet it needs renovation and modernisation throughout. There is assumed lack of cavity wall insulation and the overall heating and glazing ages are unspecified, so buyers should budget for upgrading energy performance. Council tax is above average.
Location is a strong selling point: popular Leigh-On-Sea address, close to local shops, bus routes, the A127 and C2C rail links. School catchments include local primaries and Belfairs Academy (currently requiring improvement). With a large overall floor area and decent plot, this house will particularly suit families and buyers seeking refurbishment potential to increase comfort and value.
4 bedroom semi-detached house for sale in Walker Drive, Leigh-on-sea, SS9 — £550,000 • 4 bed • 1 bath • 1344 ft²
4 bedroom semi-detached house for sale in Bohemia Chase, Leigh-on-Sea, Essex, SS9 — £350,000 • 4 bed • 1 bath • 862 ft²
3 bedroom semi-detached house for sale in Broomfield Avenue, Leigh-on-Sea, Essex, SS9 — £350,000 • 3 bed • 1 bath • 1275 ft²
4 bedroom semi-detached house for sale in * GREATLY EXTENDED * Leigh Gardens, Leigh-On-Sea, SS9 — £750,000 • 4 bed • 1 bath • 765 ft²
4 bedroom detached house for sale in Westleigh Avenue, Leigh-On-Sea, SS9 — £899,995 • 4 bed • 2 bath • 1600 ft²
3 bedroom end of terrace house for sale in * HUGE POTENTIAL * Elmsleigh Drive, Leigh-on-Sea, SS9 — £400,000 • 3 bed • 1 bath • 1120 ft²






























































































