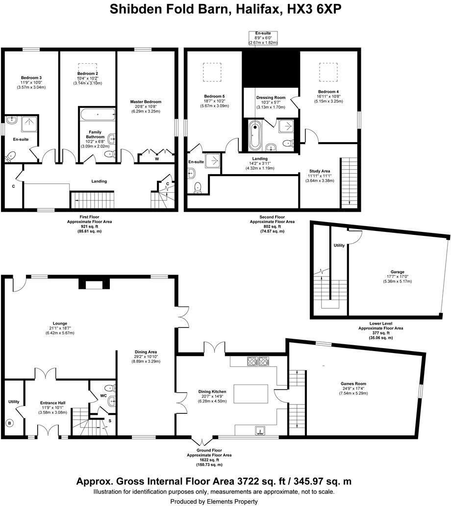
**Standout Features:**
- Five double bedrooms and four bathrooms, ideal for family living or guest accommodations
- Principal suite with vaulted ceiling, walk-in wardrobe, and luxurious ensuite
- Modern shaker-style kitchen with granite worktops, island, and underfloor heating
- Grand lounge with exposed stone, log-burning stove, and picturesque field views
- Expansive outdoor space of 1.29 acres, featuring landscaped gardens, a summer house with bar, and private woodland
- Conveniently located just a five-minute walk from Shibden Park and ten minutes from Shibden Mill Inn
Nestled in the serene Shibden Valley, Shibden Fold Barn is a beautifully converted stone barn that seamlessly blends rustic charm with modern comforts. Offering five spacious double bedrooms and four well-appointed bathrooms, this home is perfect for families or those who enjoy hosting guests. Step inside to a stunning entrance that welcomes you into light-filled spaces, including a grand lounge with scenic views and a cozy log-burning stove. The shaker-style kitchen is a dream for any cooking enthusiast, featuring high-end appliances and a central island that invites gatherings.
Outdoors, the property boasts an impressive 1.29-acre plot, ideal for entertaining or simply unwinding amidst nature. Enjoy expansive lawns, a charming summer house for socializing, and private woodland space for exploration. While the location offers tranquility, you are still within walking distance to local amenities and school options, making it a fantastic choice for families. Although the property showcases incredible potential, please note that the external stone walls lack insulation, which may require attention for optimal energy efficiency.
This unique home truly offers a lifestyle of comfort, security, and scenic beauty — an opportunity not to be missed. Arrange your viewing today and envision your future in this enchanting country haven!



















































































































































































