**Standout Features:**
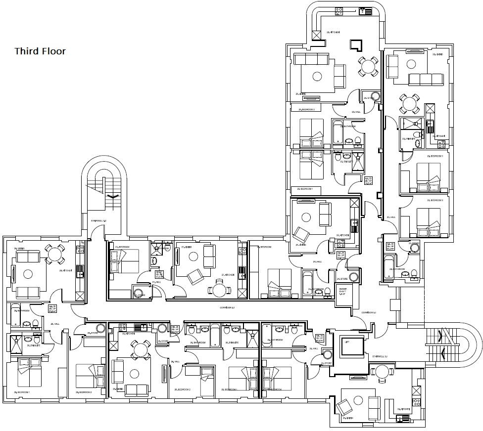
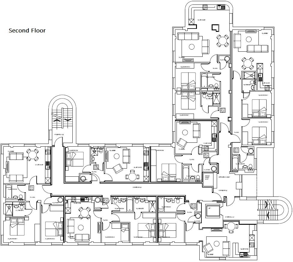
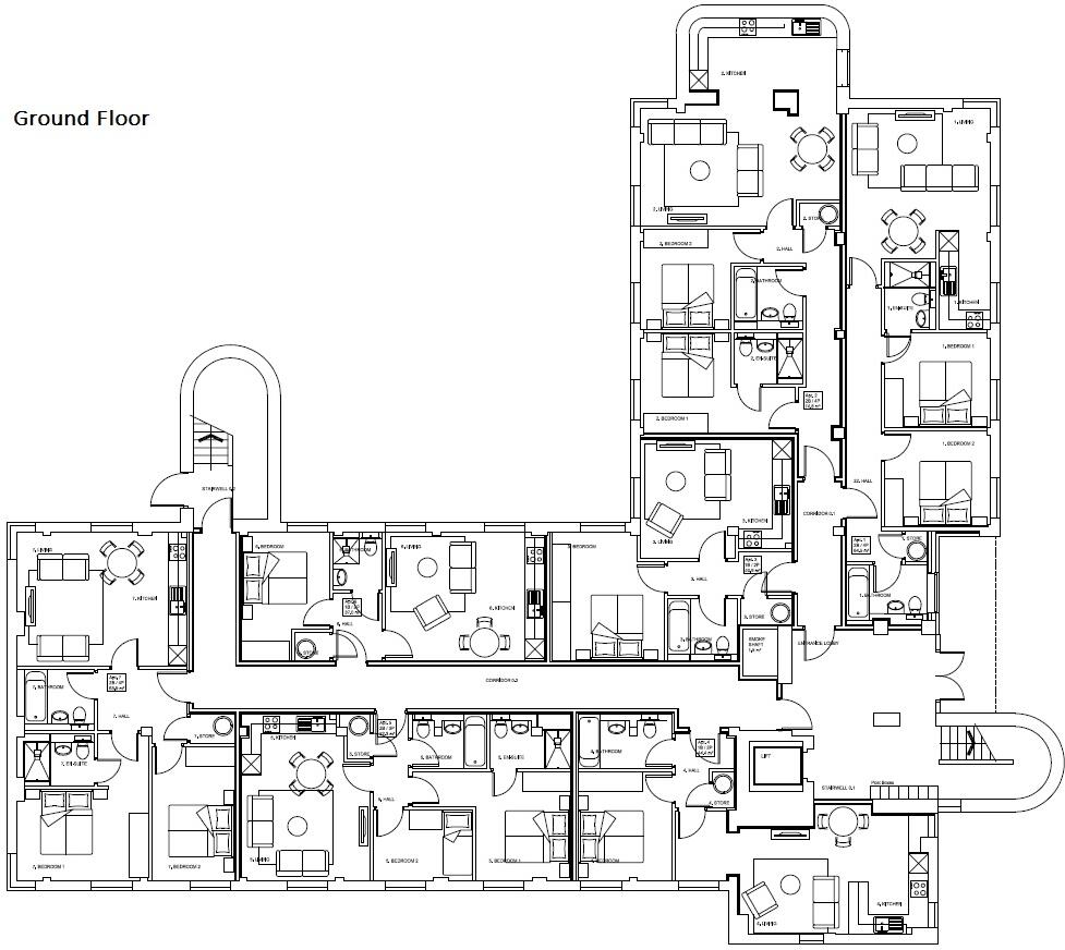
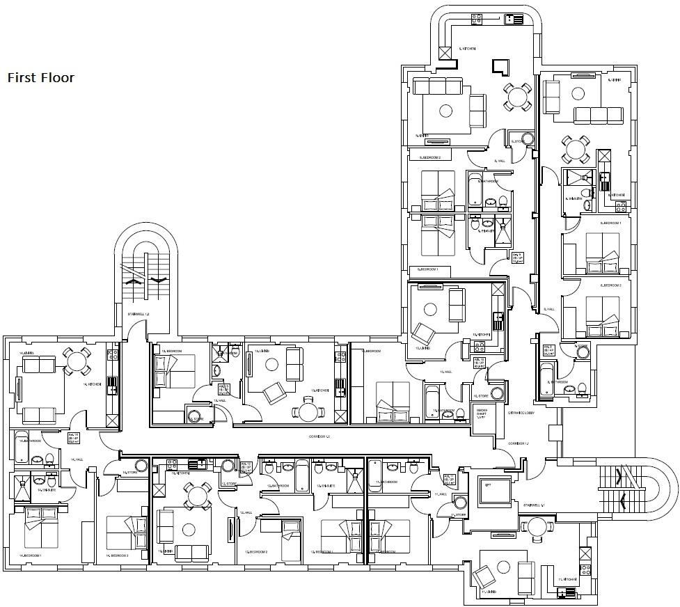
- Large residential block comprising 28 flats (12 x 1-bed & 16 x 2-bed)
- Potential for expansion with previously granted planning for two additional floors (now lapsed)
- Central location, a short walk from Swindon Train Station with 80+ daily departures to London
- Current rental income of £360,130 per annum, generating a gross initial yield of 6.00%
- Surrounded by vibrant amenities including Tesco, restaurants, and cafes
**Summary:**
Discover a lucrative investment opportunity in the heart of Swindon with this substantial residential block comprising 28 self-contained apartments. This modern, red brick building currently operates as serviced apartments and offers an impressive rental income of £360,130 per year. The property is strategically located just minutes from Swindon Train Station, providing quick access to London Paddington — a perfect draw for both tenants and future owners.
With a possibility for development, previous planning permission was granted in 2017 for an exciting roof extension to create an additional 12 flats. Though this permissions has lapsed, the concept provides a memorable opportunity for growth in an area that is otherwise well-served by amenities such as Tesco Express, cafes, and diverse restaurants, catering to both local families and visitors. Ideal for investors aiming for long-term capital appreciation or as a robust rental asset, this property is not to be overlooked. Explore the potential today, as opportunities in such prime locations are seldom available for long!
4 bedroom block of apartments for sale in North Street, Swindon, SN1 3JY, SN1 — £350,000 • 4 bed • 3 bath
3 bedroom block of apartments for sale in 60 Victoria Road, Old Town, Swindon, SN1 — £295,000 • 3 bed • 3 bath • 1717 ft²
8 bedroom block of apartments for sale in Milton Road, Swindon, SN1 — £700,000 • 8 bed • 8 bath • 619 ft²
Land for sale in Cricklade Road, Swindon, Wiltshire, SN2 — £700,000 • 1 bed • 1 bath • 2000 ft²
1 bedroom flat for sale in Farnsby Street, Swindon, Wiltshire, SN1 — £80,000 • 1 bed • 1 bath • 1768 ft²
5 bedroom terraced house for sale in Victoria Road, Old Town, Swindon, Wiltshire, SN1 — £365,000 • 5 bed • 3 bath • 2443 ft²


















































