Mid‑century family house with garden, garage and good transport links..
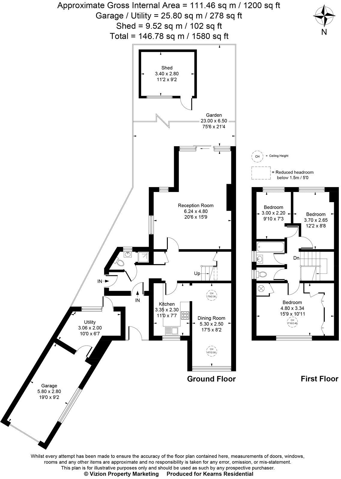
- Three bedrooms, two bathrooms, two reception rooms
A mid‑20th century three-bedroom semi-detached house offering straightforward family accommodation in a well-connected Ruislip location. The layout includes two reception rooms, a separate dining area, utility room, and an attached single garage with off-street parking — practical features for everyday family life. The property benefits from a medium-sized rear garden, double glazing installed after 2002, mains gas central heating and fast broadband and mobile signal, useful for home working or commuting.
Internally the house presents as a dated fixer-upper with clear potential to add value through modernisation or modest extension (subject to planning). Cavity walls were built without insulation (assumed), so upgrading thermal performance may be advisable. Tenure is not specified and should be confirmed early in any purchase process.
Location is a key strength: close to Ruislip Lido, local woodlands and well-regarded primary and secondary schools, with Metropolitan and Piccadilly line stations nearby for straightforward City access. Practical road links to the A40/M25 are convenient for drivers. Note that local crime levels are reported as above average and council tax is higher than average for the area — factors to weigh alongside the property's other advantages.
This home will suit a family seeking space, outdoor amenity and good transport links, or a buyer prepared to invest in updating to increase comfort and resale value. Expect to budget for internal refurbishment and thermal improvements to bring the house up to a modern standard.
3 bedroom semi-detached house for sale in Pavilion Way, Ruislip, Middlesex, HA4 — £700,000 • 3 bed • 1 bath • 990 ft²
3 bedroom semi-detached house for sale in Long Drive, Ruislip, HA4 — £650,000 • 3 bed • 1 bath • 1180 ft²
3 bedroom semi-detached house for sale in Elmbridge Drive, Ruislip, HA4 — £750,000 • 3 bed • 1 bath • 1148 ft²
2 bedroom terraced house for sale in Whitby Road, Ruislip, Middlesex, HA4 — £525,000 • 2 bed • 1 bath • 820 ft²
3 bedroom semi-detached house for sale in Diamond Road, Ruislip, HA4 — £650,000 • 3 bed • 2 bath • 1157 ft²
4 bedroom semi-detached house for sale in Bury Street, Ruislip, HA4 — £825,000 • 4 bed • 1 bath • 1301 ft²






















































