**Standout Features:**
- Two double bedrooms in a detached bungalow.
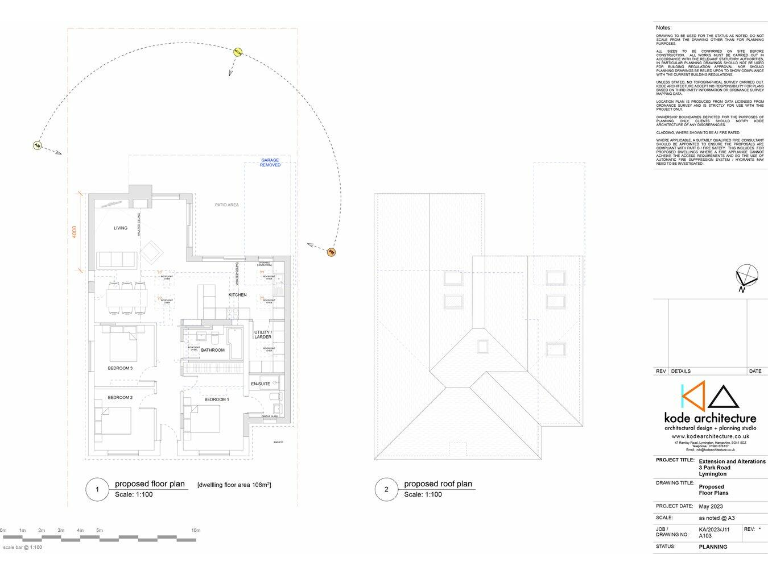
- Full planning permission for a single-story rear and side extension.
- South-facing garden for abundant sunlight.
- Quiet tree-lined road, less than a mile from Lymington's town center and Waitrose.
- Ample off-road parking with a driveway and a detached garage.
- Close proximity to deep-water marinas and the New Forest National Park.
**Potential Concerns:**
- Current energy performance rating is low (E rating).
- Requires some updates given the built era (1930-1949).
Nestled on a tranquil tree-lined street, this charming two-bedroom detached bungalow offers a unique blend of comfort and potential. With full planning permission granted for a single-story rear and side extension, buyers can envision expanding their living space to suit their needs. The property features a delightful south-facing garden that's perfect for summer gatherings and sits just a short stroll away from Lymington’s vibrant town center and the local Waitrose.
Inside, generous double-glazed windows allow for abundant natural light, highlighting the cozy living areas. Both bedrooms are spacious and well-positioned, with views of the serene garden. The property also boasts a modern shower room and a kitchen equipped with integrated appliances. Externally, the well-maintained front garden and ample driveway parking enhance its appeal. This is an ideal opportunity for families looking for a cozy home or investors interested in future renovation potential. Don’t miss out on this rare find in a sought-after location!
2 bedroom bungalow for sale in Highfield Road, Lymington, Hampshire, SO41 — £499,950 • 2 bed • 1 bath • 760 ft²
2 bedroom bungalow for sale in Clinton Road, Lymington, Hampshire, SO41 — £350,000 • 2 bed • 1 bath • 854 ft²
2 bedroom semi-detached bungalow for sale in Greenway Close, Lymington, SO41 — £440,000 • 2 bed • 1 bath • 802 ft²
2 bedroom bungalow for sale in Lawn Road, Pennington, Lymington, Hampshire, SO41 — £425,000 • 2 bed • 1 bath • 791 ft²
3 bedroom bungalow for sale in Springfield Close, Lymington, Hampshire, SO41 — £800,000 • 3 bed • 2 bath • 1364 ft²
2 bedroom bungalow for sale in Woodley Gardens, Lymington, Hampshire, SO41 — £380,000 • 2 bed • 1 bath • 705 ft²


































































