PO20 1LE - 3 bedroom detached house for sale in The Hermitage, North M…

View on Property Piper

3 bedroom detached house for sale in The Hermitage, North Mundham, Chichester, PO20

Summary - 1 THE HERMITAGE NORTH MUNDHAM CHICHESTER PO20 1LE

3 bed 3 bath Detached

Newly renovated three-bedroom detached home in peaceful hamlet, two miles from Chichester..
Triple-aspect kitchen/living room with underfloor heating and island
Three double bedrooms; ground-floor bedroom and shower room
Principal bedroom with en‑suite shower room
Newly renovated interior; modern fixtures and double glazing
Sunny, low-maintenance southerly rear garden with privacy hedge
Attached garage and double-width driveway for easy parking
Average broadband speeds; check connectivity for heavy users
Council Tax Band F — higher running costs expected
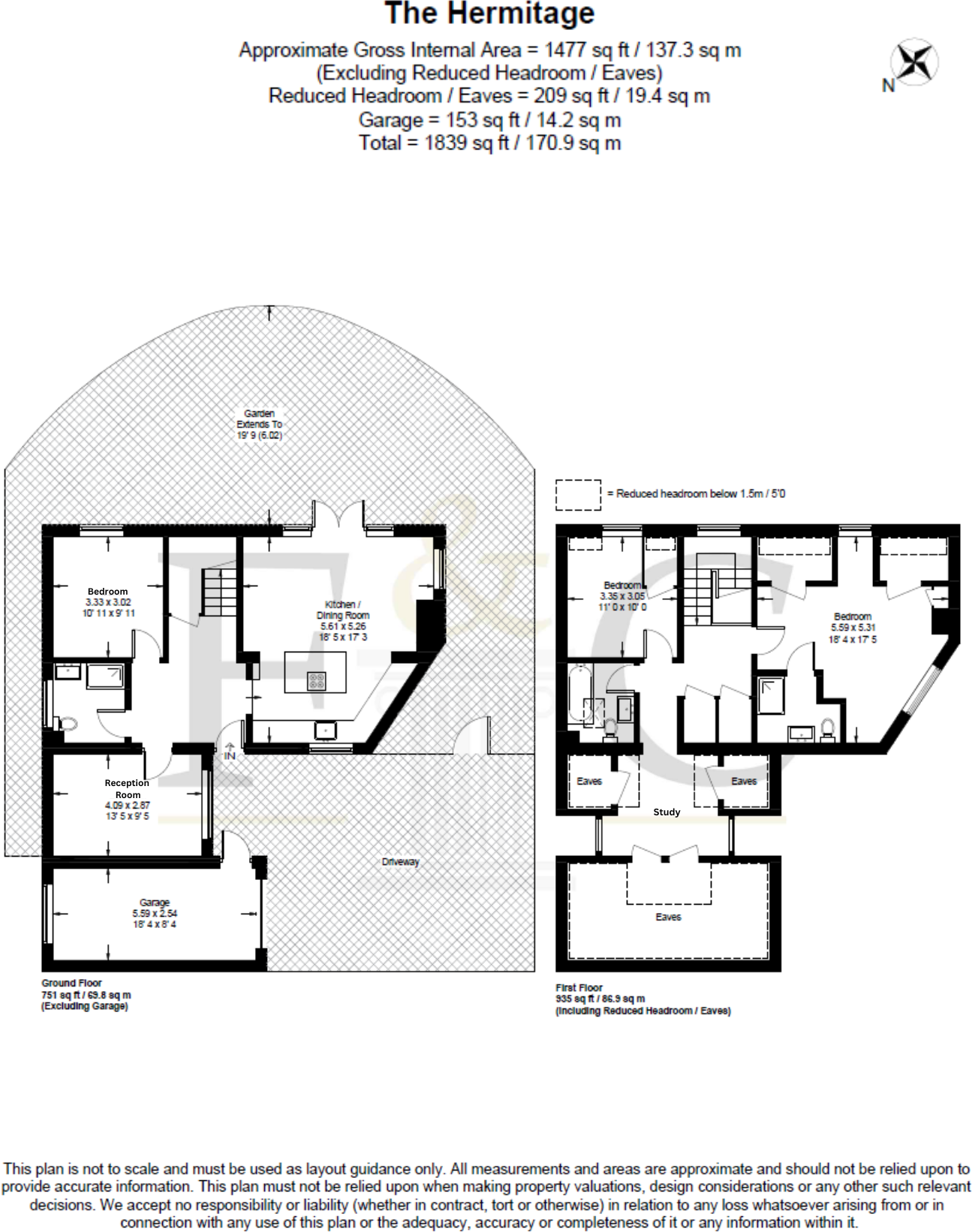
This individually designed detached home sits at the end of a peaceful cul-de-sac in North Mundham, about two miles south of Chichester. The house has been newly renovated to offer bright, well-proportioned rooms across 1,630 sq ft, including a striking triple-aspect kitchen/living room with underfloor heating, an island, and French doors opening to a sunny, low-maintenance southerly garden.

Practical family layout with three double bedrooms, three bathrooms (en-suite to the principal), and a ground-floor double bedroom with a shower room — useful for guests or accessible living. Additional reception space and a study give flexible room options for home working or hobbies. A large entrance hall with parquet flooring and a sitting room add traditional touches to the contemporary remodelling.

Outside, an attractively hard-landscaped rear garden bounded by Griselinia hedge provides privacy and low upkeep. A double driveway leads to an attached garage, making parking straightforward. The hamlet offers a village pub, farm shop, primary school and bus stop nearby, with abundant countryside walks and easy access to Chichester’s shops, schools and transport.

Notable practical points: broadband speeds are average, and council tax sits at Band F (expensive). The house dates from the late 1970s/early 1980s but has been renovated; buyers should verify structural and service details and run their own due diligence on matters such as easements and flood status.

Property Details

Brochure Descriptions

Image Descriptions

Floorplan Description

Rooms

Textual Property Features

Target Audience

AI Tags

Detected Visual Features

EPC Details

Nearby Schools

Nearest Bars And Restaurants

,,,,}

Nearest General Shops

,,}

Nearest Grocery shops

,,}

Nearest Supermarkets

,,}

Nearest Religious buildings

,,}

Nearest Medical buildings

,,,}

Nearest Airports

}

Nearest Leisure Facilities

,,,,}

Nearest Tourist attractions

,,}

Nearest Train stations

,,,,}

Nearest Bus stations and stops

,,,,}

Nearest Hotels

,,}

Tags

Local Market Stats

AirBnB Data

Similar Properties

Meta

High Res Images

Compatible Images

Low res Images

Thumbnails

Raw Images

High Res Floorplan Images

Compatible Floorplan Images

Low res Floorplan Images

FloorplanImages Thumbnail

Raw Floorplan Images