**Standout Features:**
- Fully refurbished three-bedroom semi-detached cottage
- Expansive semi-rural views
- Modern kitchen with integrated appliances and breakfast bar
- Separate dining room and garden room
- Potential for side extension (subject to planning permission)
- Off-street parking behind five-bar gates
- Short drive to Ongar High Street
- Additional land and outbuilding available separately
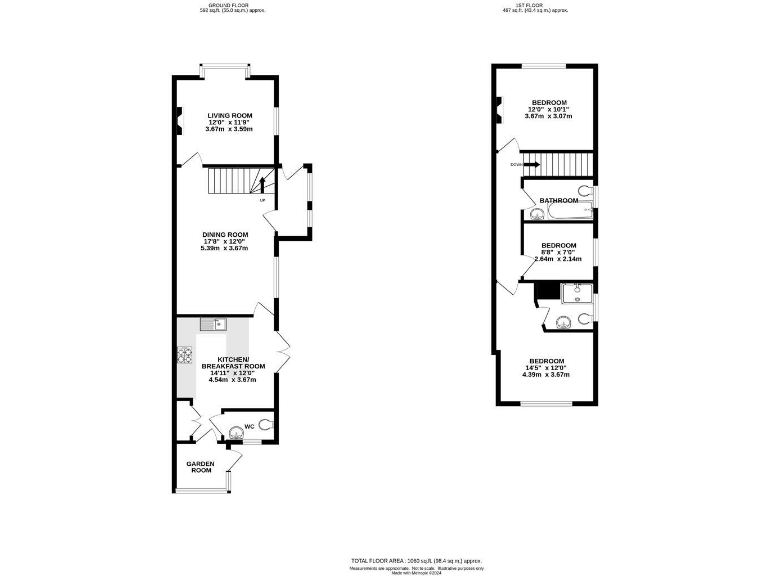
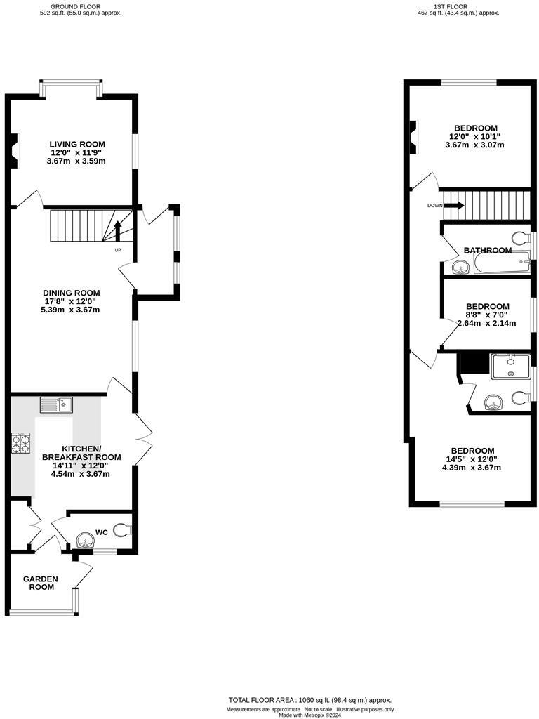
Nestled in a tranquil semi-rural setting, this beautifully refurbished three-bedroom semi-detached cottage boasts stunning views and an array of modern features, perfect for first-time buyers or families seeking comfort and versatility. Upon entering, you're welcomed by a bright dining room flowing into a cozy lounge adorned with double-aspect windows for ample natural light. The stylish kitchen serves as a culinary haven with its white cabinetry, wooden countertops, and integrated appliances, while a charming garden room extends your living space into the garden, providing a serene spot to unwind.
Upstairs, three well-proportioned bedrooms await, including a master suite complete with an en-suite shower room. A family bathroom complements the space, ensuring practicality for everyday living. The generous plot offers parking for multiple vehicles and the option to expand further, enhancing the property's potential. Located just a short drive from Ongar High Street and surrounded by pastoral beauty, this home effortlessly marries country charm with convenient access to urban amenities—ideal for those looking for a slice of country life. Don’t miss this opportunity to secure a peaceful retreat with potential for growth on your investment.
4 bedroom semi-detached house for sale in Paslow Hall Cottages King Street, High Ongar, Ongar, CM5 — £800,000 • 4 bed • 2 bath • 2049 ft²
3 bedroom semi-detached house for sale in King Street, Ongar, Essex, CM5 — £600,000 • 3 bed • 2 bath • 524 ft²
4 bedroom semi-detached house for sale in Walls Green, Willingale, Ongar., CM5 — £840,000 • 4 bed • 2 bath • 1745 ft²
3 bedroom detached house for sale in High Ongar Road, Ongar, CM5 — £650,000 • 3 bed • 1 bath • 1181 ft²
3 bedroom semi-detached house for sale in Horsfrith Park Cottages, Radley Green, CM4 — £555,000 • 3 bed • 2 bath • 732 ft²
3 bedroom semi-detached house for sale in Roxwell Road, Chelmsford, CM1 — £425,000 • 3 bed • 1 bath • 851 ft²


































































































