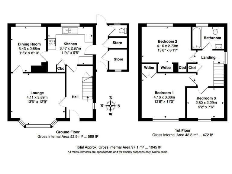
**Standout Features:**
- Cul-de-sac location for peace and privacy
- Well-presented semi-detached home
- Three bedrooms and one bathroom
- Two spacious reception rooms
- Fitted kitchen plus utility room
- Enclosed rear garden with composite decking
- Potential for extension (STP)
- Off-road parking and store room
Discover this well-presented three-bedroom semi-detached home nestled in a tranquil cul-de-sac setting. Offering an excellent layout for families, this property features two generous reception rooms filled with natural light, a fitted kitchen, and a utility room for added convenience. The first floor boasts three comfortable bedrooms, alongside an inviting bathroom.
Step outside to enjoy the beautifully enclosed rear garden, complete with composite decking and a versatile garden room that could easily serve as a home office or leisure space. This property comes with the added benefit of off-road parking and has the potential for further development (subject to planning).
Conveniently located near local amenities and transport links, this family-friendly home is also surrounded by several well-regarded schools, making it an ideal choice for families. With competitive pricing and unique features, this property won’t stay on the market long—schedule your viewing today to fully appreciate its charm and future potential!
3 bedroom semi-detached house for sale in Harts Gardens, Guildford, GU2 — £475,000 • 3 bed • 1 bath • 1125 ft²
3 bedroom semi-detached house for sale in Oak Tree Drive, GUILDFORD, GU1 — £550,000 • 3 bed • 1 bath • 1146 ft²
3 bedroom semi-detached house for sale in Mansel Close, Guildford, GU2 — £479,950 • 3 bed • 1 bath • 930 ft²
3 bedroom semi-detached house for sale in Yew Tree Drive, Guildford, GU1 — £435,000 • 3 bed • 1 bath • 994 ft²
3 bedroom end of terrace house for sale in Oakfields, Guildford, GU3 — £425,000 • 3 bed • 1 bath • 907 ft²
3 bedroom semi-detached house for sale in Worcester Road, Guildford, Surrey, GU2 — £500,000 • 3 bed • 2 bath • 1428 ft²














































































































