Refurbished Victorian flat with private south-facing terrace and large garden, close to Clapham Old Town..
Two double bedrooms with bay-fronted principal room
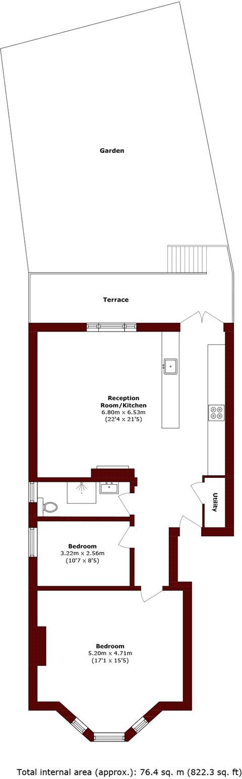
A thoughtfully refurbished two-bedroom Victorian flat set on Larkhall Rise, combining period character with contemporary living. The lateral layout places a bay-fronted principal bedroom to the front and a generous open-plan kitchen/reception to the rear, which opens directly onto a south-facing terrace and large landscaped garden — a rare private outdoor amenity for a flat in central Clapham.
The property has been finished to a modern standard with integrated kitchen fittings, high ceilings and clean finishes throughout. Heating is by mains-gas boiler and radiators; broadband speeds are fast and mobile signal is excellent. Tenure is share of freehold with 956 years remaining, offering long-term security and low lease-related costs.
Practical points to note: the building is of traditional solid-brick construction (assumed no cavity insulation), which may present opportunities for insulation improvements. There is a single family bathroom serving two double bedrooms. Local amenities are strong — Clapham Old Town, Clapham Common and multiple good primary schools are within easy reach, with Clapham North and Wandsworth Road stations also nearby.
This flat will suit buyers seeking a well-presented, characterful home with substantial private outdoor space — ideal for a small family or professionals who prioritise entertaining and outdoor living in an inner-city setting. Council tax is moderate and the area has average crime levels.
3 bedroom flat for sale in Larkhall Rise, Clapham, SW4 — £749,000 • 3 bed • 3 bath • 1075 ft²
2 bedroom apartment for sale in Larkhall Rise, London, SW4 — £600,000 • 2 bed • 1 bath • 994 ft²
2 bedroom flat for sale in Union Road, Clapham, SW4 — £575,000 • 2 bed • 1 bath • 818 ft²
5 bedroom terraced house for sale in Lillieshall Road, London SW4 — £2,350,000 • 5 bed • 3 bath • 2385 ft²
2 bedroom flat for sale in Larkhall Rise,
Clapham, SW4 — £600,000 • 2 bed • 1 bath • 847 ft²
2 bedroom flat for sale in Brayburne Avenue, SW4 — £675,000 • 2 bed • 1 bath • 750 ft²


















































