**Standout Features:**
- 1-bedroom retirement flat on the first floor
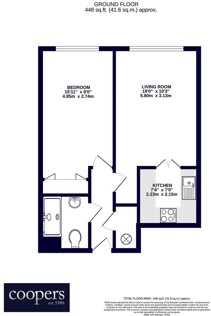
- Convenient 448 sq ft layout with well-maintained communal areas
- Close proximity to Ruislip shops and transport links (Metropolitan and Piccadilly lines)
- Security entry phone system and lifts to all floors
- Residents' lounge and communal laundry facilities
- Beautifully landscaped communal gardens
- Off-street residents parking
**Potential Downsides:**
- Compact living space may not suit everyone
- Leasehold tenure and associated costs
Experience the tranquil and convenient lifestyle that this charming one-bedroom first-floor retirement flat in Masters Court has to offer. Spanning an efficient 448 square feet, this well-maintained home features a spacious lounge, practical kitchen, and a double bedroom, perfectly geared for comfortable retirement living.
Enjoy the peace of mind that comes with a secure entrance, lift access to all floors, and delightful communal spaces, including a lounge and laundry room, surrounded by beautifully landscaped gardens. Perfect for those looking to downsize, this property is ideally located just moments from Ruislip High Street, offering easy access to supermarkets, coffee shops, bars, and transport links to Central London.
This property presents an excellent opportunity for a peaceful lifestyle within a vibrant community, enhanced by the low crime rate and the welcoming surroundings. Don’t miss out—properties in this desirable area move quickly!
1 bedroom apartment for sale in Wood Lane, Ruislip, HA4 — £190,000 • 1 bed • 1 bath • 448 ft²
1 bedroom apartment for sale in Wood Lane, Ruislip, HA4 — £220,000 • 1 bed • 1 bath • 440 ft²
1 bedroom apartment for sale in Wood Lane, Ruislip, HA4 — £155,000 • 1 bed • 1 bath • 462 ft²
2 bedroom retirement property for sale in Wood Lane, Ruislip, HA4 — £250,000 • 2 bed • 1 bath • 645 ft²
2 bedroom retirement property for sale in Wood Lane, Ruislip, HA4 — £300,000 • 2 bed • 1 bath • 578 ft²
2 bedroom apartment for sale in Wood Lane, Ruislip, HA4 — £225,000 • 2 bed • 1 bath • 670 ft²










































