Period character, private garden and central amenities in a walkable location.
Grade II listed Georgian townhouse with high ceilings and sash windows
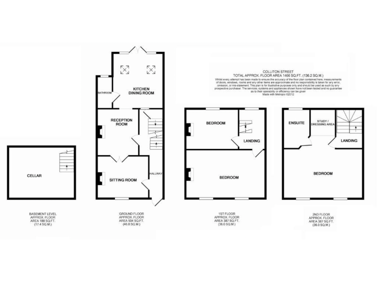
Approx 1,466 sq ft across three storeys, generous room proportions
Stylish vaulted kitchen/diner with skylights and French doors to garden
Luxurious master suite with freestanding bath and separate shower
Walled rear garden, paved patio, cellar useful for storage
Residents’ permit on-street parking (Zone D); no off-street space
Listed status restricts alterations; consent likely required for changes
Located in a high-crime, deprived ward — may affect insurance/resale
A striking Grade II listed Georgian townhouse arranged over three storeys, offering generous living space (approx 1,466 sq ft) and strong period character. High ceilings, sash windows, feature fireplaces and exposed beams give the house historic charm while modern touches — a vaulted kitchen/diner with skylights and a luxurious master suite — provide comfortable, contemporary living.
The property sits in the heart of Dorchester with easy walking access to shops, cafes, Brewery Square and the mainline rail link. A walled rear garden and paved patio provide private outdoor space suited to family use; there is cellar storage and residents’ permit on-street parking (Zone D).
Important practical points: listed status means repair or alteration will need consent and may restrict changes. The house is in a high-crime area and set in a deprived urban ward, which may affect insurance and resale perceptions. Broadband speeds are average; mobile signal is excellent.
Well suited to families seeking a character-filled town centre home, or buyers prepared to manage listed-building requirements. There is scope to modernise or reconfigure the rear extension to increase living space and light, but any works should be planned with listed constraints in mind.
3 bedroom end of terrace house for sale in High West Street, Dorchester, Dorset, DT1 — £285,000 • 3 bed • 2 bath • 876 ft²
3 bedroom end of terrace house for sale in Trinity Cottages, Grey School Passage, Dorchester, DT1 — £350,000 • 3 bed • 2 bath • 1306 ft²
4 bedroom end of terrace house for sale in Dorset Street, Blandford Forum, Dorset, DT11 — £470,000 • 4 bed • 2 bath • 1551 ft²
3 bedroom terraced house for sale in Salisbury Street, Blandford Forum, DT11 — £415,000 • 3 bed • 3 bath • 1604 ft²
4 bedroom detached house for sale in Glyde Path Road, Dorchester, DT1 — £530,000 • 4 bed • 2 bath • 1642 ft²
4 bedroom terraced house for sale in Downes Street, Bridport, DT6 — £675,000 • 4 bed • 3 bath • 2402 ft²


































































































